最終情報更新日:2026/04/08
プレサンス ロジェ 千種愛知県名古屋市千種区の賃貸物件
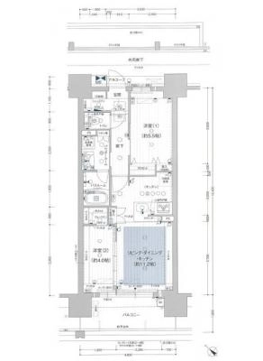
物件情報
| 種別 / 構造 | マンション / 鉄筋コンクリート造15階建て総84戸 |
|---|---|
| 交通 |
|
| 所在地 | 愛知県名古屋市千種区千種3丁目![]() ストリートビューを表示 |
| 築年 | 2023年(令和5 年) 2月 |
| 取扱支店 | ニッショー千種支店 |
| 最終情報更新日 | 2026/04/08 |
※上記、基本情報は過去の情報を元に作成しております。
こちらの物件は現在満室です。
その他の愛知県名古屋市千種区の物件

最寄りの駅周辺のおすすめスポットなのだ
-

2026.01.18
名古屋市千種区
名古屋の「吹上公園」にある富士山すべり台は子どもたちに大人気!野球場やテニスコートもある公園です!- 公園
- のんびり
-

2019.03.02
名古屋市千種区
千種区・吹上のタルトが美味しい洋菓子店「biquette(ビケット)」はイートインもおすすめ♪青い食器がおしゃれです。- タルト
- ケーキ
物件番号・取り扱い支店
| 物件番号 | 8051297 |
|---|

取り扱い支店
アクセス:地下鉄東山線千種駅4番出口南へ150m、JR中央本線千種駅南東へ170m
営業時間:AM10:00~PM6:00
定休日:水曜定休/5月3日~6日は休業
免許番号:国土交通大臣免許(14)第2018号 / (公社)愛知県宅地建物取引業協会会員 / 東海不動産公正取引協議会加盟
ニッショー千種支店からのご案内
おしゃれな飲食店やショップがたくさんある街、セントラルパークがお散歩コース…、そんな素敵な新生活を千種区でスタートしてみませんか。
プレサンス ロジェ 千種のよくある質問
Qプレサンス ロジェ 千種に空き物件はありますか?
A現在、プレサンス ロジェ 千種に空き物件はありません。
Qプレサンス ロジェ 千種についてどこに問い合わせしたら良いですか?
Aプレサンス ロジェ 千種はニッショー千種支店で取り扱っております。ニッショー千種支店は地下鉄東山線千種駅4番出口南へ150m、JR中央本線千種駅南東へ170mの場所にございます。
営業時間はAM10:00~PM6:00(水曜定休/5月3日~6日は休業)です。詳しくはニッショー千種支店のページでご確認ください。





