最終情報更新日:2025/11/16
ランドマーク豊川愛知県豊川市の賃貸物件
物件情報
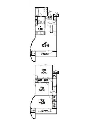
| 種別 / 構造 | マンション / 鉄筋コンクリート造12階建て総28戸 |
|---|---|
| 交通 |
|
| 所在地 | 愛知県豊川市諏訪4丁目![]() ストリートビューを表示 |
| 築年 | 2005年(平成17年) 10月 |
| 取扱支店 | ニッショー豊川支店 |
| 最終情報更新日 | 2025/11/16 |
ランドマーク豊川の現在募集中の部屋
その他の愛知県豊川市の2LDK、3LDKの物件
周辺の暮らし情報
| 他交通 | 諏訪町駅951m(歩12分) |
|---|---|
| 他交通 | 八幡駅1357m(歩17分) |
| 他交通 | 小田渕駅2453m(歩31分) |
| 役所 | 豊川市役所1191m(歩15分) |
| 郵便局 | 豊川郵便局735m(歩10分) |
| 金融 | 豊橋信用金庫諏訪支店449m(歩6分) |
| 病院 | 丹羽クリニック214m(歩3分) |
| 書店 | 精文館書店豊川店590m(歩8分) |
| 買い物 | V・drug 豊川店441m(歩6分) |
| 買い物 | ファミリーマート豊川諏訪西店492m(歩7分) |
| 買い物 | イオンモール豊川1549m(歩20分) |
| 買い物 | COOK MART(クックマート) 諏訪店1081m(歩14分) |
| 買い物 | フィール 豊川西店957m(歩12分) |
物件番号・取り扱い支店
| 物件番号 | 5451696 |
|---|

取り扱い支店
アクセス:名鉄豊川線諏訪町駅北へ90m
営業時間:AM10:00~PM6:00
定休日:水曜定休/土曜・日曜は営業
免許番号:国土交通大臣免許(14)第2018号 / (公社)愛知県宅地建物取引業協会会員 / 東海不動産公正取引協議会加盟
ニッショー豊川支店からのご案内
愛知県東部の「豊川市」「新城市」「蒲郡市東部」とその近郊が担当エリア。新婚さんやファミリーさん向けから単身さん向けの物件まで豊富な物件を取り揃えております!
ランドマーク豊川のよくある質問
Qランドマーク豊川に空き物件はありますか?
A2025/11/16現在、以下の部屋に空きがございます。
詳しくはニッショー豊川支店へお問い合わせください。
周辺の似た間取り物件はこちら。
詳しくはニッショー豊川支店へお問い合わせください。
周辺の似た間取り物件はこちら。
Qランドマーク豊川についてどこに問い合わせしたら良いですか?
Aランドマーク豊川はニッショー豊川支店で取り扱っております。ニッショー豊川支店は名鉄豊川線諏訪町駅北へ90mの場所にございます。
営業時間はAM10:00~PM6:00(水曜定休/土曜・日曜は営業)です。詳しくはニッショー豊川支店のページでご確認ください。

















