最終情報更新日:2025/12/05
レオパレスMOMO愛知県清須市の賃貸物件
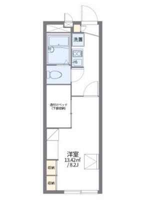
物件情報
| 種別 / 構造 | コーポ / 軽量鉄骨造2階建て総10戸 |
|---|---|
| 交通 |
|
| 所在地 | 愛知県清須市西枇杷島町地領1丁目![]() ストリートビューを表示 |
| 築年 | 2007年(平成19年) 10月 |
| 取扱支店 | ニッショー小田井支店 |
| 最終情報更新日 | 2025/12/05 |
※上記、基本情報は過去の情報を元に作成しております。
こちらの物件は現在満室です。
その他の愛知県清須市の物件
物件番号・取り扱い支店
| 物件番号 | 2250255 |
|---|

取り扱い支店
アクセス:地下鉄鶴舞線・名鉄犬山線上小田井駅南出口南西へ110m
営業時間:AM10:00~PM6:00
定休日:水曜定休/土曜・日曜は営業
免許番号:国土交通大臣免許(14)第2018号 / (公社)愛知県宅地建物取引業協会会員 / 東海不動産公正取引協議会加盟
ニッショー小田井支店からのご案内
「mozoワンダーシティ」が人気の名古屋市西区「上小田井駅」を中心に、緑豊かな「庄内緑地公園」もある充実した環境の人気エリアです。
レオパレスMOMOのよくある質問
QレオパレスMOMOに空き物件はありますか?
A現在、レオパレスMOMOに空き物件はありません。
QレオパレスMOMOについてどこに問い合わせしたら良いですか?
AレオパレスMOMOはニッショー小田井支店で取り扱っております。ニッショー小田井支店は地下鉄鶴舞線・名鉄犬山線上小田井駅南出口南西へ110mの場所にございます。
営業時間はAM10:00~PM6:00(水曜定休/土曜・日曜は営業)です。詳しくはニッショー小田井支店のページでご確認ください。



