住居付貸店舗 神戸8丁目住居付き店舗
お気に入り登録
0人がお気に入り登録
| 賃料 共益費等 |
敷金/償却 権利金 |
最寄り駅 | 所在地 | 種別 | 面積 (坪数) |
築年数 | 引渡日 |
|---|---|---|---|---|---|---|---|
| 18.7万円 実費 |
34万円/----- ----- |
近鉄鈴鹿線鈴鹿市駅歩5分 三交バス鈴鹿市駅停歩5分 |
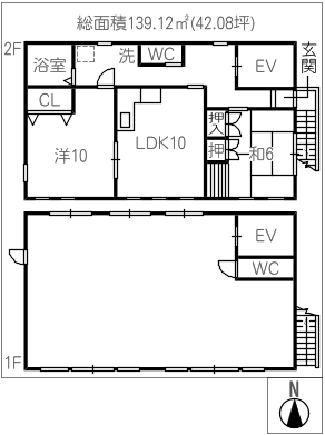
三重県鈴鹿市神戸8丁目 | 住居付貸店舗 | 139.12㎡ (約42.08坪) |
築24年 | 即 可 |
賃料18.7万円(共益費等 実費)
敷金34万円 償却----- 権利金----- 駐車場敷地内(家賃込)
三重県鈴鹿市神戸8丁目
近鉄鈴鹿線鈴鹿市駅歩5分/三交バス鈴鹿市駅停歩5分
この物件のおすすめポイント
- 駐車場あり
物件情報
情報更新日 : 2025/11/02 ※次回更新は記載の「情報更新日」より8日以内に行います。
賃料等条件
-
賃料
18.7万円 -
㎡・坪単価
約1344.1円/㎡ 約4443.9円/坪 -
共益費
実費 -
敷金/償却
34万円/----- -
権利金
----- -
駐車場
敷地内(家賃込) -
その他条件
要お問い合わせ -
引渡日
即 可 -
備考
保証会社利用必須(初回保証料総賃料の100%、更新保証料総賃料の10%/年、引落手数料550円/月)
駐車は5台分込み
物件概要
-
種別
住居付貸店舗 -
面積(坪数)
139.12㎡(約42.08坪) -
構造/階数
鉄骨造 2階建/1階 -
築年
2001年(平成13年)10月 -
設備
要お問い合わせ -
ガス
プロパンガスエリア -
用途地域
商業地域 -
取引形態
仲介 -
希望業種
事務所・物販・塾等(カフェ・デリバリーは応相談)
-
交通
近鉄鈴鹿線鈴鹿市駅歩5分/三交バス鈴鹿市駅停歩5分 -
所在地
三重県鈴鹿市神戸8丁目
※用途地域により業種に制限があります。事前に確認が必要です。
- この物件情報をメールで送る
- この物件情報をLINEで送る
-
スマホで物件情報を見る
物件番号・取り扱い支店
- 物件番号
- 6501906-001




































住居付き店舗となります。
事務所・物販・塾に最適です♪駐車場は5台分可能。エレベーターは使用不可とするお問い合わせはニッショー鈴鹿白子支店まで