226件該当
並び順
播磨ビル

三重県松阪市大黒田町
三交バス春日町停歩2分
- 駐車場あり

保証金14万円 償却----- 権利金----- 駐車場6,600円
階数2階建/1階 面積43.00㎡(約13.00坪) 築年数築41年
メゾンM&K 事務所

三重県三重郡川越町大字豊田
近鉄名古屋線川越富洲原駅歩6分/近鉄名古屋線近鉄富田駅歩20分/JR関西本線富田駅歩11分
- 駐車場あり

パノラマ
保証金10万円 償却----- 権利金----- 駐車場3,300円
階数2階建/2階 面積30.70㎡(約9.09坪) 築年数築17年
ときわビル 店舗

三重県四日市市城西町
近鉄湯の山線中川原駅歩12分/近鉄名古屋線近鉄四日市駅歩20分
- 駐車場あり

保証金12万円 償却13.2万円 権利金----- 駐車場7,700円
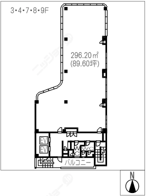
階数7階建/2階 面積49.86㎡(約15.08坪) 築年数築47年
三重県四日市市安島1丁目の物件情報

三重県四日市市安島1丁目
近鉄名古屋線近鉄四日市駅歩6分
- 駐車場あり

保証金120万円 償却132万円 権利金----- 駐車場3台込
階数3階建/1階 面積169.55㎡(約51.28坪) 築年数築32年
西条5丁目倉庫 B棟

三重県鈴鹿市西条5丁目
近鉄鈴鹿線三日市駅歩11分
- 駐車場あり

敷金48万円 償却----- 権利金----- 駐車場家賃込
階数1階建/1階 面積132.03㎡(約39.93坪) 築年数築36年
外五曲町貸事務所

三重県松阪市外五曲町
近鉄山田線松阪駅歩25分/近鉄山田線東松阪駅歩39分/近鉄山田線松ヶ崎駅歩33分
- 駐車場あり

敷金10万円 償却----- 権利金----- 駐車場3,300円
階数3階建/1階 面積21.96㎡(約6.64坪) 築年数築25年
水谷ビル ニッショー限定物件

三重県四日市市中浜田町
近鉄名古屋線近鉄四日市駅歩5分/JR関西本線四日市駅歩17分
- 駐車場あり

保証金70.4万円 償却70.4万円 権利金----- 駐車場3台込
階数4階建/1階 面積92.57㎡(約28.00坪) 築年数築35年
三重町津興貸事務所

三重県津市三重町津興
近鉄名古屋線津新町駅歩26分/三交バス三重町停歩2分
- 駐車場あり

保証金30万円 償却----- 礼金16.5万円 駐車場家賃込
階数1階建/1階 面積43.00㎡(約13.00坪) 築年数築6年
AKATSUKI OFFICE

三重県津市下弁財町津興
JR紀勢本線阿漕駅歩21分
- 駐車場あり

保証金36万円 償却----- 権利金----- 駐車場1台込
階数2階建/1階 面積40.58㎡(約12.27坪) 築年数築1年未満
ニュー播磨ビル

三重県松阪市駅部田町
三交バス駅部田停歩1分
- 駐車場あり

保証金27万円 償却----- 礼金9.9万円 駐車場3台込
階数3階建/1階 面積45.79㎡(約13.85坪) 築年数築35年