レオパレスセラヴィ町屋 2階春日井市の賃貸物件


































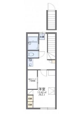
間取り図

| 賃 料 共益費等 | 保証金 礼 金 | 最寄り駅 | 所在地 | 間取り 専有面積 | 築年数 | 階数 | 入居日 |
|---|---|---|---|---|---|---|---|
| 3.9万円 5,000円 | ----- 1.00ヶ月 | 西町屋停歩3分 間内駅までバス13分 名鉄小牧線牛山駅歩38分 名鉄小牧線春日井駅歩38分 | 愛知県春日井市田楽町 | 1K 26.08㎡ | 築21年 | 2階 / 2階建 | 即 可 |

物件情報
情報更新日2026年05月06日
※次回更新は記載の「情報更新日」より8日以内に行います。
家賃等条件
| 家賃 | 3.9万円 |
|---|---|
| 共益費 | 5,000円 |
| 保証金 / 礼 金 | ----- / 1.00ヶ月 |
| 駐車場 | 敷地内(5,500円) |
| その他条件 | 鍵交換 料 16,500円 |
| 入居日 | 即 可 |
| 保証会社 | 保証会社利用必須(保証会社の利用 利用料の100%~120%) |
| 保険 | 必要 |
| 更新料 | 契約更新時に更新料16,500円 |
| 備考 | 環境維持費:1ヶ月550円(税込)、鍵交換費:ご契約時16500円(税込)、退去時清掃費:41800円(税込)、インターネット利用料:有料、更新手数料:16500円(税込)、保証委託料:必要 |
物件概要
| 間取り | 1K / 26.08㎡ |
|---|---|
| 方位 | ----- |
| 種別 / 構造 | アパート / 木造2階建て総16戸 |
| 階数 | 2階 |
| 築年 | 2005年(平成17年) 5月 |
| 交通 | 西町屋停歩3分 間内駅までバス13分 |
| 所在地 | 愛知県春日井市田楽町 Googleマップで見る |
気になる物件はお早めに。来店予約でスムーズにご案内します。
設備
- 宅配ボックス
- 電気コンロ
- エアコン
- 駐輪場
- 給湯
- 浴室乾燥機
- シャワー付トイレ
周辺の暮らし情報
- 買い物ミニストップ春日井大手町店 467m(歩6分)
- 買い物エクボ 上田楽店 919m(歩12分)
- 買い物B&Dドラッグストア岩野店 973m(歩13分)
物件番号・取り扱い支店
| 物件番号 | 7350434-007 |
|---|

取り扱い支店
アクセス:JR中央本線勝川駅東へ400m
営業時間:AM10:00~PM6:00
定休日:水曜定休/土曜・日曜は営業
取引形態:仲介
免許番号:国土交通大臣免許(14)第2018号 / (公社)愛知県宅地建物取引業協会会員 / 東海不動産公正取引協議会加盟
ニッショー勝川支店からのご案内
春日井市は名古屋市と隣接しており、ベッドタウンとして住みやすい環境が整えられています。交通機関が非常に充実しており名古屋市内へ勤務の方に大変人気です!
同じ建物の他の物件
-

1階5.6万円 / 共益費等 5,000円
保証金 ----- / 礼 金1.00ヶ月1K / 23.71㎡入居日 2026年4月下旬
-

2階5.8万円 / 共益費等 5,000円
保証金 ----- / 礼 金1.00ヶ月1K / 26.08㎡入居日 即 可
-

2階5.8万円 / 共益費等 5,000円
保証金 ----- / 礼 金1.00ヶ月1K / 26.08㎡入居日 即 可
-

1階5.6万円 / 共益費等 5,000円
保証金 ----- / 礼 金1.00ヶ月1K / 23.71㎡入居日 2026年5月中旬
-

2階3.9万円 / 共益費等 5,000円
保証金 ----- / 礼 金1.00ヶ月1K / 26.08㎡入居日 即 可




