最終情報更新日:2026/05/25
ビレッジハウス大府1号棟愛知県大府市の賃貸物件
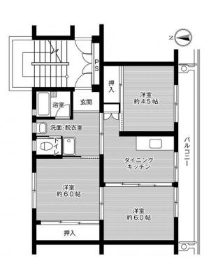
物件情報
| 種別 / 構造 | マンション / 鉄筋コンクリート造5階建て総40戸 |
|---|---|
| 交通 |
|
| 所在地 | 愛知県大府市大府町ウド![]() ストリートビューを表示 |
| 築年 | 1979年(昭和54年) 1月 |
| 取扱支店 | ニッショー大府支店 |
| 最終情報更新日 | 2026/05/25 |
ビレッジハウス大府1号棟の現在募集中の部屋
その他の愛知県大府市の3DKの物件
周辺の暮らし情報
| 他交通 | 大府駅1709m(歩22分) |
|---|---|
| 図書館 | おおぶ文化交流の杜アローブ1175m(歩15分) |
| 郵便局 | 大府森岡郵便局916m(歩12分) |
| 買い物 | セブンイレブン856m(歩11分) |
| 買い物 | フィール749m(歩10分) |
| 買い物 | アピタ大府店1747m(歩22分) |
物件番号・取り扱い支店
| 物件番号 | 6950095 |
|---|

取り扱い支店
アクセス:JR東海道本線共和駅南東へ300m
営業時間:AM10:00~PM6:00
定休日:水曜定休/土曜・日曜は営業
免許番 号:国土交通大臣免許(14)第2018号 / (公社)愛知県宅地建物取引業協会会員 / 東海不動産公正取引協議会加盟
ニッショー大府支店からのご案内
「健康づくり都市宣言」を掲げている、快適な暮らしが満喫できる大府市と、隣接する東浦町のお部屋探しは、是非当支店にお任せください。
ビレッジハウス大府1号棟のよくある質問
Qビレッジハウス大府1号棟に空き物件はありますか?
A2026/05/25現在、以下の部屋に空きがございます。
詳しくはニッショー大府支店へお問い合わせください。
詳しくはニッショー大府支店へお問い合わせください。
Qビレッジハウス大府1号棟についてどこに問い合わせしたら良いですか?
Aビレッジハウス大府1号棟はニッショー大府支店で取り扱っております。ニッショー大府支店はJR東海道本線共和駅南東へ300mの場所にございます。
営業時間はAM10:00~PM6:00(水曜定休/土曜・日曜は営業)です。詳しくはニッショー大府支店のページでご確認ください。










