最終情報更新日:2026/05/13
レオパレス花木愛知県岡崎市の賃貸物件
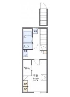
物件情報
| 種別 / 構造 | アパート / 木造2階建て総14戸 |
|---|---|
| 交通 |
|
| 所在地 | 愛知県岡崎市昭和町字神郷![]() ストリートビューを表示 |
| 築年 | 2003年(平成15年) 10月 |
| 取扱支店 | ニッショー岡崎支店 |
| 最終情報更新日 | 2026/05/13 |
レオパレス花木の現在募集中の部屋
その他の愛知県岡崎市の1Kの物件
周辺の暮らし情報
| 他交通 | 西岡崎駅638m(歩8分) |
|---|---|
| 他交通 | 矢作橋駅3011m(歩38分) |
| 他交通 | 南安城駅2953m(歩37分) |
物件番号・取り扱い支店
| 物件番号 | 2750492 |
|---|

取り扱い支店
アクセス:名鉄名古屋本線東岡崎駅西へ150m
営業時間:AM10:00~PM6:00
定休日:水曜定休/土曜・日曜は営業
免許番 号:国土交通大臣免許(14)第2018号 / (公社)愛知県宅地建物取引業協会会員 / 東海不動産公正取引協議会加盟
ニッショー岡崎支店からのご案内
岡崎市は近代的な街の中にいながら、少しの移動で自然な風景にも容易に出会うことができる、バランスの取れた町です。こんな岡崎市にあなたも住んでみませんか?
レオパレス花木のよくある質問
Qレオパレス花木に空き物件はありますか?
A2026/05/13現在、以下の部屋に空きがございます。
詳しくはニッショー岡崎支店へお問い合わせください。
詳しくはニッショー岡崎支店へお問い合わせください。
Qレオパレス花木についてどこに問い合わせしたら良いですか?
Aレオパレス花木はニッショー岡崎支店で取り扱っております。ニッショー岡崎支店は名鉄名古屋本線東岡崎駅西へ150mの場所にございます。
営業時間はAM10:00~PM6:00(水曜定休/土曜・日曜は営業)です。詳しくはニッショー岡崎支店のページでご確認ください。

















