パラシオン渡岡崎市の賃貸物件









































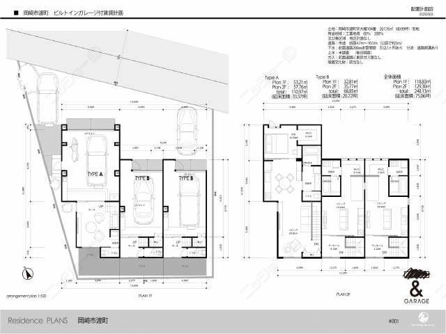
間取り図

360°パノラマビュー
| 賃 料 共益費等 | 保証金 礼 金 | 最寄り駅 | 所在地 | 間取り 専有面積 | 築年数 | 向き | 入居日 |
|---|---|---|---|---|---|---|---|
| 12万円 家賃込 | ----- 1ヶ月 | 名鉄名古屋本線矢作橋駅歩14分 JR東海道本線西岡崎駅歩28分 愛知環状鉄道中岡崎駅歩24分 | 愛知県岡崎市渡町字大榎 | 1R 68.58㎡ | 新築 | 南西向き | 2026年6月上旬 |

支店長
★ニッショーホームページにて詳細公開中★
新築ガレージハウス募集開始♪6月より入居開始予定★愛車と暮らす理想的なガレージスタイル♪★NET無料★☆都市ガス仕様★電動シャッター★最終1室となりました♪内見予約受付中です♪
この物件のおすすめポイント!
インターネット無料
WiFi
WiFi無料
メゾネットタイプ
新築
室内洗濯機置場
角部屋
電気自動車充電コンセント
物件情報
情報更新日2026年05月29日
※次回更新は記載の「情報更新日」より8日以内に行います。
家賃等条件
| 家賃 | 12万円 |
|---|---|
| 共益費 | 家賃込 |
| 保証金 / 礼 金 | ----- / 1ヶ月 |
| 駐車場 | 敷地内(1台込) |
| その他条件 | 月額保証料 1,807円/月 |
| 入居日 | 2026年6月上旬 |
| 保証会社 | 保証会社利用必須(初回保証料総賃料の30%、月額保証料総賃料の1.5%) |
| 保険 | 必要 |
| 契約期間 | 2年 |
| 更新料 | 更新料30,000円/2年 |
| 備考 | 事務所使用相談可(事務所契約の場合は条件が変更となります) 建物面積にガレージ(車庫)28.31平米含む 都市ガス |
物件概要
| 間取り | 1R / 68.58㎡ |
|---|---|
| 方位 | 南西向き |
| 種別 / 構造 | タウンハウス / 木造2階建て総3戸 |
| 築年 | 2026年(令和8年) 5月 |
| 交通 | 名鉄名古屋本線矢作橋駅歩14分 |
| 所在地 | 愛知県岡崎市渡町字大榎 Googleマップで見る |
気になる物件はお早めに。来店予約でスムーズにご案内します。
設備
- エアコン2基
- TVモニター付インターホン
- 光インターネット対応
- 追い焚き風呂
- 独立洗面台
- ケーブルテレビ
- 電気自動車充電コンセント
- 宅配ボックス
- シャワー付トイレ
- システムキッチン
- 浴室乾燥機
- 室内用物干
- ウォークインクローゼット
- ガレージ
- ガスコンロ3口
- サンルーム
- グリル付コンロ
- 給湯
- シャワー
周辺の暮らし情報
- 病院おにづか内科クリニック 880m(歩11分)
- 買い物Vドラッグ 560m(歩7分)
- 買い物FEEL 1300m(歩17分)
- 買い物セブンイレブン 350m(歩5分)
物件番号・取り扱い支店
| 物件番号 | 2704481-001 |
|---|

取り扱い支店
アクセス:名鉄名古屋本線東岡崎駅西へ150m
営業時間:AM10:00~PM6:00
定休日:水曜定休/土曜・日曜は営業
取引形態:仲介
免許番号:国土交通大臣免許(14)第2018号 / (公社)愛知県宅地建物取引業協会会員 / 東海不動産公正取引協議会加盟
ニッショー岡崎支店からのご案内
岡崎市は近代的な街の中にいながら、少しの移動で自然な風景にも容易に出会うことができる、バランスの取れた町です。こんな岡崎市にあなたも住んでみませんか?




