S-RESIDENCE堀田駅前futur 2階名古屋市瑞穂区の賃貸物件


















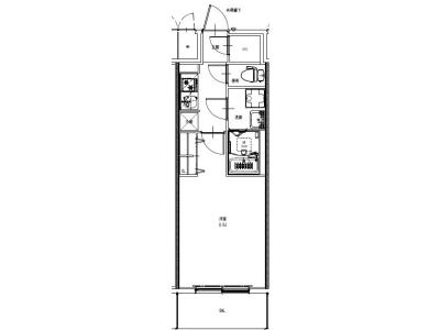
間取り図

| 賃 料 共益費等 | 保証金 礼 金 | 最寄り駅 | 所在地 | 間取り 専有面積 | 築年数 | 階数 | 入居日 |
|---|---|---|---|---|---|---|---|
| 64,500円 8,000円 | ----- ----- | 名鉄名古屋本線堀田駅歩2分 地下鉄名港線金山駅歩5分 地下鉄名城線妙音通駅歩12分 | 愛知県名古屋市瑞穂区堀田通9丁目 | 1K 25.10㎡ | 新築 | 2階 / 11階建 | 即 可 |

物件情報
情報更新日2026年05月19日
※次回更新は記載の「情報更新日」より8日以内に行います。
家賃等条件
| 家賃 | 64,500円 |
|---|---|
| 共益費 | 8,000円 |
| 保証金 / 礼 金 | ----- / ----- |
| 駐車場 | 敷地内(20,900円) |
| その他条件 | 鍵交換料 33,000円 |
| 入居日 | 即 可 |
| 保険 | 必要 |
| 契約期間 | 2年 |
| 更新料 | 契約更新時に更新料家賃の1ヶ月 |
| 備考 | 更新料:新賃料の1ヶ月(2年毎)/駐車場の大きさ・空車状況・空は要確認/インターネット無料(会社名:スターキャット (Wi-Fi付全戸加入))/駐輪場は希望者のみ/短期解約違約金1年未満1ヶ月(賃料+共益費)/室内清掃費に加えてエアコンクリーニング費用が1台当たり16,500円必要(解約時) /保証会社加入必須(法人契約は敷金1ヶ月必要)/保険要加入/諸条件は要確認/現況を優先します 都市ガス |
物件概要
| 間取り | 1K / 25.10㎡ |
|---|---|
| 方位 | 南向き |
| 種別 / 構造 | マンション / 鉄筋コンクリート造11階建て総60戸 |
| 階数 | 2階 |
| 築年 | 2025年(令和7年) 10月 |
| 交通 | 名鉄名古屋本線堀田駅歩2分 |
| 所在地 | 愛知県名古屋市瑞穂区堀田通9 丁目 Googleマップで見る |
気になる物件はお早めに。来店予約でスムーズにご案内します。
設備
- オートロック
- ガスコンロ2口
- 宅配ボックス
- 防犯カメラ
- エレベーター
- バイク置場
- 駐輪場
- システムキッチン
- 独立洗面台
- 浴室乾燥機
- エアコン
- TVモニター付インターホン
周辺の暮らし情報
- 大学愛知みずほ大学 907m(歩12分)
- 買い物フィール 356m(歩5分)
- 買い物アオキスーパー熱田店 827m(歩11分)
- 買い物ヤマダイ 1275m(歩16分)
- 買い物カインズ 186m(歩3分)
- 買い物iiNEマルシェ 1210m(歩16分)
物件番号・取り扱い支店
| 物件番号 | 1351446-025 |
|---|

取り扱い支店
アクセス:地下鉄名城線・桜通線新瑞橋駅4番出口東へ25m
営業時間:AM10:00~PM6:00
定休日:水曜定休/土曜・日曜は営業
取引形態:仲介
免許番号:国土交通大臣免許(14)第2018号 / (公社)愛知県宅地建物取引業協会会員 / 東海不動産公正取引協議会加盟
ニッショー新瑞支店からのご案内
交通機関の充実した瑞穂区と南区を担当。市内随一の総合運動公園や桜の名所「山崎川」など緑も豊かですよ。
同じ建物の他の物件
-

9階64,500円 / 共益費等 8,000円
保証金 ----- / 礼 金-----1K / 25.00㎡入居日 即 可
-

7階65,500円 / 共益費等 8,000円
保証金 ----- / 礼 金-----1K / 25.10㎡入居日 即 可
-

5階6.5万円 / 共益費等 8,000円
保証金 ----- / 礼 金-----1K / 25.33㎡入居日 即 可
-

5階63,500円 / 共益費等 8,000円
保証金 ----- / 礼 金-----1K / 25.23㎡入居日 即 可
-

5階6.5万円 / 共益費等 8,000円
保証金 ----- / 礼 金-----1K / 25.23㎡入居日 即 可
-

3階64,500円 / 共益費等 8,000円
保証金 ----- / 礼 金-----1K / 25.23㎡入居日 即 可
-

2階64,500円 / 共益費等 8,000円
保証金 ----- / 礼 金-----1K / 25.23㎡入居日 即 可
-

2階64,500円 / 共益費等 8,000円
保証金 ----- / 礼 金-----1K / 25.33㎡入居日 即 可
-

4階64,500円 / 共益費等 8,000円
保証金 ----- / 礼 金-----1K / 25.23㎡入居日 即 可
-

4階64,500円 / 共益費等 8,000円
保証金 ----- / 礼 金-----1K / 25.23㎡入居日 即 可




