貸事務所 アストラーレ名駅
お気に入り登録
0人がお気に入り登録
| 賃料 共益費等 |
敷金/償却 礼金 |
最寄り駅 | 所在地 | 種別 | 面積 (坪数) |
築年数 | 引渡日 |
|---|---|---|---|---|---|---|---|
| 26.9万円 家賃込 |
269万円/----- 26.9万円 |
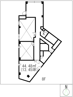
全線名古屋駅歩5分 | 愛知県名古屋市中村区名駅2丁目 | 貸事務所 | 44.48㎡ (約13.45坪) |
築18年 | 相 談 |
賃料26.9万円(共益費等 家賃込)
敷金269万円 償却----- 礼金26.9万円 駐車場敷地内(35,200円)
愛知県名古屋市中村区名駅2丁目
全線名古屋駅歩5分
この物件のおすすめポイント
- 駐車場あり
物件情報
情報更新日 : 2026/02/01 ※次回更新は記載の「情報更新日」より8日以内に行います。
賃料等条件
-
賃料
26.9万円 -
㎡・坪単価
約6047.6円/㎡ 約20000.0円/坪 -
共益費
家賃込 -
敷金/償却
269万円/----- -
礼金
26.9万円 -
駐車場
敷地内(35,200円) -
その他条件
スライド償却 -
引渡日
相 談 -
備考
2年未満解約は解約時償却20%駐車場は都度空き確認が必要です。
物件概要
-
種別
貸事務所 -
面積(坪数)
44.48㎡(約13.45坪) -
構造/階数
鉄骨造 8階建/8階 -
築年
2007年(平成19年)12月 -
設備
エアコン1基・防犯カメラ・エレベーター -
ガス
都市ガスエリア -
用途地域
要お問い合わせ -
取引形態
仲介 -
希望業種
各種事務所
-
交通
全線名古屋駅歩5分 -
所在地
愛知県名古屋市中村区名駅2丁目
※用途地域により業種に制限があります。事前に確認が必要です。
周辺環境
笹島小学校800m
- この物件情報をメールで送る
- この物件情報をLINEで送る
-
スマホで物件情報を見る
物件番号・取り扱い支店
- 物件番号
- 8500152-010




◆全線『名古屋駅』徒歩5分の好立地物件!!
■弊社事務所からすぐ近くです!■お問い合わせはニッショー名古屋駅前支店まで!!■TEL052ー569-0900