貸店舗 O店舗
お気に入り登録
3人がお気に入り登録
| 賃料 共益費等 |
敷金/償却 礼金 |
最寄り駅 | 所在地 | 種別 | 面積 (坪数) |
築年数 | 引渡日 |
|---|---|---|---|---|---|---|---|
| 9.5万円 ----- |
28.5万円/----- 9.5万円 |
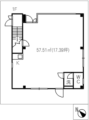
JR東海道本線大垣駅歩54分 | 岐阜県大垣市中曽根町 | 貸店舗 | 57.51㎡ (約17.39坪) |
築31年 | 相 談 |
賃料9.5万円(共益費等 -----)
敷金28.5万円 償却----- 礼金9.5万円 駐車場敷地内(家賃込)
岐阜県大垣市中曽根町
JR東海道本線大垣駅歩54分
この物件のおすすめポイント
- 駐車場あり
物件情報
情報更新日 : 2025/11/27 ※次回更新は記載の「情報更新日」より8日以内に行います。
賃料等条件
-
賃料
9.5万円 -
㎡・坪単価
約1651.8円/㎡ 約5462.9円/坪 -
共益費
----- -
敷金/償却
28.5万円/----- -
礼金
9.5万円 -
駐車場
敷地内(家賃込) -
その他条件
要お問い合わせ -
引渡日
相 談 -
備考
保証会社利用必須(初回保証料総賃料の100%、年間保証料総賃料の10%/年)
駐車は3台込
物件概要
-
種別
貸店舗 -
面積(坪数)
57.51㎡(約17.39坪) -
構造/階数
鉄骨造 2階建/1階 -
築年
1994年(平成6年)2月 -
設備
要お問い合わせ -
ガス
なし -
用途地域
準工業地域 -
取引形態
仲介 -
希望業種
各種店舗
-
交通
JR東海道本線大垣駅歩54分 -
所在地
岐阜県大垣市中曽根町
※用途地域により業種に制限があります。事前に確認が必要です。
- この物件情報をメールで送る
- この物件情報をLINEで送る
-
スマホで物件情報を見る
物件番号・取り扱い支店
- 物件番号
- 5203654-001



















独立テナント♪
お問い合わせはニッショー大垣支店まで♪