貸店舗事務所 刈谷市御幸町4丁目 K&Mビル
お気に入り登録
0人がお気に入り登録
| 賃料 共益費等 |
保証金/償却 礼金 |
最寄り駅 | 所在地 | 種別 | 面積 (坪数) |
築年数 | 引渡日 |
|---|---|---|---|---|---|---|---|
| 38.5万円 20,000円 |
115.5万円/----- 38.5万円 |
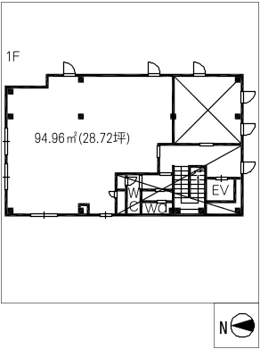
JR東海道本線刈谷駅歩25分 | 愛知県刈谷市御幸町4丁目 | 貸店舗事務所 | 94.96㎡ (約28.72坪) |
築2年 | 即 可 |
賃料38.5万円(共益費等 20,000円)
保証金115.5万円 償却----- 礼金38.5万円 駐車場敷地内(5,500円)
愛知県刈谷市御幸町4丁目
JR東海道本線刈谷駅歩25分
この物件のおすすめポイント
- 駐車場あり
物件情報
情報更新日 : 2026/01/29 ※次回更新は記載の「情報更新日」より8日以内に行います。
賃料等条件
-
賃料
38.5万円 -
㎡・坪単価
約4054.3円/㎡ 約13405.2円/坪 -
共益費
20,000円 -
保証金/償却
115.5万円/----- -
礼金
38.5万円 -
駐車場
敷地内(5,500円) -
その他条件
要お問い合わせ -
引渡日
即 可 -
備考
物件概要
-
種別
貸店舗事務所 -
面積(坪数)
94.96㎡(約28.72坪) -
構造/階数
鉄骨造 4階建/4階 -
築年
2023年(令和5年)5月 -
設備
要お問い合わせ -
ガス
なし -
用途地域
第一種住居地域 -
取引形態
仲介 -
希望業種
各種店舗・事務所(塾・スクール・その他)
-
交通
JR東海道本線刈谷駅歩25分 -
所在地
愛知県刈谷市御幸町4丁目
※用途地域により業種に制限があります。事前に確認が必要です。
- この物件情報をメールで送る
- この物件情報をLINEで送る
-
スマホで物件情報を見る
物件番号・取り扱い支店
- 物件番号
- 4603123-001



