貸事務所 チョウシュンタワー
お気に入り登録
1人がお気に入り登録
| 賃料 共益費等 |
敷金/償却 権利金 |
最寄り駅 | 所在地 | 種別 | 面積 (坪数) |
築年数 | 引渡日 |
|---|---|---|---|---|---|---|---|
| 221,936円 家賃込 |
1,109,680円/----- ----- |
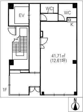
JR東海道本線刈谷駅歩4分 | 愛知県刈谷市若松町1丁目 | 貸事務所 | 41.71㎡ (約12.61坪) |
築6年 | 即 可 |
賃料221,936円(共益費等 家賃込)
敷金1,109,680円 償却----- 権利金----- 駐車場敷地内(14,300円)
愛知県刈谷市若松町1丁目
JR東海道本線刈谷駅歩4分
この物件のおすすめポイント
- 駐車場あり
物件情報
情報更新日 : 2026/01/29 ※次回更新は記載の「情報更新日」より8日以内に行います。
賃料等条件
-
賃料
221,936円 -
㎡・坪単価
約5320.9円/㎡ 約17600.0円/坪 -
共益費
家賃込 -
敷金/償却
1,109,680円/----- -
権利金
----- -
駐車場
敷地内(14,300円) -
その他条件
要お問い合わせ -
引渡日
即 可 -
備考
駐車料は1台分、駐車台数応相談(総9台あり、内6台は機械式)
物件概要
-
種別
貸事務所 -
面積(坪数)
41.71㎡(約12.61坪) -
構造/階数
鉄骨造 9階建/1階 -
築年
2020年(令和2年)1月 -
設備
要お問い合わせ -
ガス
なし -
用途地域
近隣商業地域 -
取引形態
仲介 -
希望業種
各種事務所
-
交通
JR東海道本線刈谷駅歩4分 -
所在地
愛知県刈谷市若松町1丁目
※用途地域により業種に制限があります。事前に確認が必要です。
- この物件情報をメールで送る
- この物件情報をLINEで送る
-
スマホで物件情報を見る
物件番号・取り扱い支店
- 物件番号
- 4603095-001






