貸店舗事務所 愛知県安城市三河安城本町2丁目の物件情報
お気に入り登録
0人がお気に入り登録
| 賃料 共益費等 |
保証金/償却 権利金 |
最寄り駅 | 所在地 | 種別 | 面積 (坪数) |
築年数 | 引渡日 |
|---|---|---|---|---|---|---|---|
| 8.8万円 11,000円 |
24万円/----- ----- |
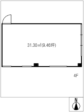
JR東海道本線三河安城駅歩3分 | 愛知県安城市三河安城本町2丁目 | 貸店舗事務所 | 31.30㎡ (約9.46坪) |
築44年 | 相 談 |
賃料8.8万円(共益費等 11,000円)
保証金24万円 償却----- 権利金----- 駐車場敷地内(9,900円)
愛知県安城市三河安城本町2丁目
JR東海道本線三河安城駅歩3分
この物件のおすすめポイント
- 駐車場あり
物件情報
情報更新日 : 2026/01/12 ※次回更新は記載の「情報更新日」より8日以内に行います。
賃料等条件
-
賃料
8.8万円 -
㎡・坪単価
約2811.5円/㎡ 約9302.3円/坪 -
共益費
11,000円 -
保証金/償却
24万円/----- -
権利金
----- -
駐車場
敷地内(9,900円) -
その他条件
要お問い合わせ -
引渡日
相 談 -
備考
保証会社利用必須(初回100%・毎年10%)
物件概要
-
種別
貸店舗事務所 -
面積(坪数)
31.30㎡(約9.46坪) -
構造/階数
鉄骨造 5階建/4階 -
築年
1982年(昭和57年)1月 -
設備
要お問い合わせ -
ガス
都市ガスエリア -
用途地域
要お問い合わせ -
取引形態
仲介 -
希望業種
各種店舗・事務所
-
交通
JR東海道本線三河安城駅歩3分 -
所在地
愛知県安城市三河安城本町2丁目
※用途地域により業種に制限があります。事前に確認が必要です。
周辺環境
碧海信用金庫240m / 岡崎信用金庫400m / ピアゴ480m / ファミリーマート80m
- この物件情報をメールで送る
- この物件情報をLINEで送る
-
スマホで物件情報を見る
物件番号・取り扱い支店
- 物件番号
- 2001867-004









駐車場は敷地外の場合があります。
駅前物件です。