3件該当
並び順
愛知県名古屋市東区矢田4丁目の物件情報

愛知県名古屋市東区矢田4丁目
全線大曽根駅歩10分/地下鉄名城線ナゴヤドーム前矢田駅歩8分
保証金28万円 償却15.4万円 権利金----- 駐車場-----
階数4階建/3階 面積40.94㎡(約12.38坪) 築年数築40年
矢田4丁目長屋 倉庫

愛知県名古屋市東区矢田4丁目
全線大曽根駅歩7分/地下鉄名城線ナゴヤドーム前矢田駅歩5分/名鉄瀬戸線矢田駅歩8分
保証金3.3万円 償却3.3万円 権利金----- 駐車場-----
階数1階建/1階 面積38.88㎡(約11.76坪) 築年数築60年
矢田4丁目長屋 倉庫

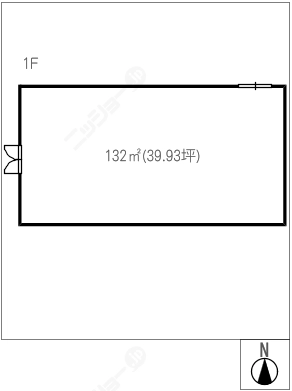
愛知県名古屋市東区矢田4丁目
全線大曽根駅歩7分/地下鉄名城線ナゴヤドーム前矢田駅歩5分/名鉄瀬戸線矢田駅歩8分
保証金4万円 償却4.4万円 権利金----- 駐車場-----
階数1階建/1階 面積44.50㎡(約13.46坪) 築年数築60年