2件該当
並び順
勝幡ビル

愛知県愛西市勝幡町流
名鉄津島線勝幡駅歩2分
貸事務所
賃料
7.7万円
(共益費等 3,300円)
保証金15.4万円 償却15.4万円 権利金----- 駐車場-----
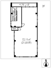
階数4階建/2階 面積72.11㎡(約21.81坪) 築年数築43年
- 物品販売
- 美容・健康・介護関係
- 塾・教室関係
勝幡ビル

愛知県愛西市勝幡町流
名鉄津島線勝幡駅歩2分
貸事務所
賃料
5.5万円
(共益費等 3,300円)
保証金11万円 償却11万円 権利金----- 駐車場-----
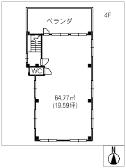
階数4階建/4階 面積64.77㎡(約19.59坪) 築年数築43年
- 物品販売
- 美容・健康・介護関係
- 塾・教室関係