7件該当
並び順
ビレッジハウス那加1階

岐阜県各務原市那加東新町2丁目
名鉄各務原線六軒駅歩11分/名鉄各務原線各務原市役所前駅歩10分
- 駐車場あり

保証金45万円 償却----- 礼金16.5万円 駐車場2台込
階数5階建/1階 面積273.85㎡(約82.83坪) 築年数築50年
岐阜県各務原市那加門前町3丁目の物件情報

岐阜県各務原市那加門前町3丁目
名鉄各務原線各務原市役所前駅歩4分
- 駐車場あり

保証金45万円 償却----- 権利金----- 駐車場6,600円
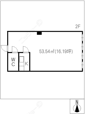
階数4階建/2階 面積53.54㎡(約16.19坪) 築年数築37年
GR倉庫

岐阜県各務原市那加住吉町1丁目
名鉄各務原線各務原市役所前駅歩6分

保証金12万円 償却----- 礼金4.4万円 駐車場-----
階数1階建/1階 面積20.96㎡(約6.30坪) 築年数築1年未満
オフィスY&Y

岐阜県各務原市那加住吉町1丁目
名鉄各務原線各務原市役所前駅歩5分
- 駐車場あり

保証金24万円 償却----- 礼金13.2万円 駐車場5,500円
階数3階建/2階 面積61.98㎡(約18.75坪) 築年数築34年
ニュー那加サンプラザ

岐阜県各務原市那加門前町3丁目
名鉄各務原線各務原市役所前駅歩4分
- 駐車場あり

保証金21万円 償却23.1万円 礼金46.2万円 駐車場6,600円
階数4階建/2階 面積163.09㎡(約49.33坪) 築年数築37年
ニュー那加サンプラザ

岐阜県各務原市那加門前町3丁目
名鉄各務原線各務原市役所前駅歩4分
- 駐車場あり

保証金27万円 償却29.7万円 権利金----- 駐車場7,700円
階数4階建/2階 面積53.54㎡(約16.19坪) 築年数築37年
野崎店舗

岐阜県各務原市蘇原青雲町3丁目
名鉄各務原線六軒駅歩14分/JR高山本線蘇原駅歩17分/名鉄各務原線各務原市役所前駅歩31分
- 駐車場あり

保証金72万円 償却----- 権利金----- 駐車場2台込
階数2階建/1階 面積120.66㎡(約36.50坪) 築年数築27年