1件該当
並び順
豊川市小坂井町西浦店舗

愛知県豊川市小坂井町西浦
JR飯田線小坂井駅歩5分/名鉄名古屋本線伊奈駅歩11分/JR東海道本線西小坂井駅歩18分
- 駐車場あり

パノラマ
貸店舗事務所
賃料
22万円
(共益費等 -----)
保証金60万円 償却----- 礼金44万円 駐車場家賃込
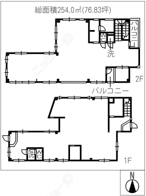
階数2階建/1階 面積254.00㎡(約76.83坪) 築年数築41年