お問い合わせ番号:1604419-002 / 出力日時:2026年4月11日 04時06分
貸店舗
岐阜スカイウイング37 西棟
JR岐阜駅直結。駅前再開発物件1F角です。
2Fビジネスホテルです。前化粧品販売店です。専門学校等近くにあります!
- 大通り沿い
物件情報
| 賃料 | 320,100円 | ㎡・坪単価 | 約3993.2円/㎡ 約13200.0円/坪 |
|---|---|---|---|
| 共益費 | ----- | 保証金/償却 | 87.3万円/640,200円 |
| 礼金 | 320,100円 | 駐車場 | ----- |
| その他条件 | 要お問い合わせ | 引渡日 | 即 可 |
| 備考 | 天井エアコン付 | ||
スマホから
確認する
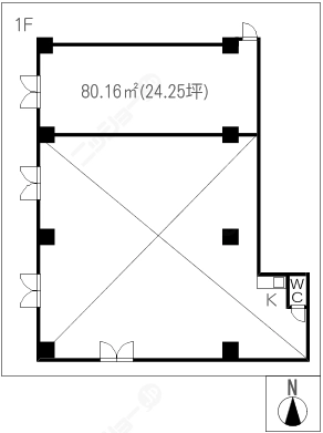
| 種別 | 貸店舗 | 面積(坪数) | 80.16㎡(約24.25坪) |
|---|---|---|---|
| 構造/階数 | 鉄骨造 11階建/1階 | 築年 | 2012年(平成24年)10月 |
| 設備 | エアコン1基・IHコンロ・シャワー付トイレ・オール電化 | ガス | なし |
| 用途地域 | 商業地域 | 取引形態 | 仲介 |
| 希望業種 | 各種店舗事務所
|
||
| 交通 | JR東海道本線岐阜駅歩3分/名鉄名古屋本線名鉄岐阜駅歩10分 | ||
| 所在地 | 岐阜県岐阜市吉野町6丁目 | ||
物件番号・取り扱い支店
物件番号
1604419-002
ニッショー岐阜支店
TEL:058-266-1321
FAX:058-262-2225
アクセス
名鉄名古屋本線・各務原線岐阜駅北へ240m、JR東海道本線岐阜駅北へ640m
営業時間
AM10:00~PM6:00
定休日
水曜定休/5月3日~6日は休業
取引形態
仲介
免許番号
国土交通大臣免許(14)第2018号 / (公社)岐阜県宅地建物取引業協会会員 / 東海不動産公正取引協議会加盟

情報更新日 : 2026/04/05 ※次回更新は記載の「情報更新日」より8日以内に行います。
※情報の性格上、契約済の場合もございます。詳しくは上記担当支店までお尋ねください。

