貸店舗 元八事近藤店舗
お気に入り登録
0人がお気に入り登録
| 賃料 共益費等 |
保証金/償却 権利金 |
最寄り駅 | 所在地 | 種別 | 面積 (坪数) |
築年数 | 引渡日 |
|---|---|---|---|---|---|---|---|
| 523,809円 ----- |
2,857,140円/1,571,427円 ----- |
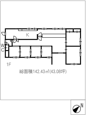
地下鉄鶴舞線塩釜口駅歩8分 | 愛知県名古屋市天白区元八事4丁目 | 貸店舗 | 142.43㎡ (約43.08坪) |
築47年 | 相 談 |
賃料523,809円(共益費等 -----)
保証金2,857,140円 償却1,571,427円 権利金----- 駐車場敷地内(家賃込)
愛知県名古屋市天白区元八事4丁目
地下鉄鶴舞線塩釜口駅歩8分
この物件のおすすめポイント
- 駐車場あり
物件情報
情報更新日 : 2026/02/05 ※次回更新は記載の「情報更新日」より8日以内に行います。
賃料等条件
-
賃料
523,809円 -
㎡・坪単価
約3677.6円/㎡ 約12158.9円/坪 -
共益費
----- -
保証金/償却
2,857,140円/1,571,427円 -
権利金
----- -
駐車場
敷地内(家賃込) -
その他条件
要お問い合わせ -
引渡日
相 談 -
備考
保証会社利用必須(初回保証料総賃料の100%、更新保証料総賃料の10%/年)
駐車場は前面13台分
物件概要
-
種別
貸店舗 -
面積(坪数)
142.43㎡(約43.08坪) -
構造/階数
木造 1階建/1階 -
築年
1978年(昭和53年)3月 -
設備
要お問い合わせ -
ガス
なし -
用途地域
第二種中高層住居専用地域 -
取引形態
仲介 -
希望業種
各種店舗
-
交通
地下鉄鶴舞線塩釜口駅歩8分 -
所在地
愛知県名古屋市天白区元八事4丁目
※用途地域により業種に制限があります。事前に確認が必要です。
- この物件情報をメールで送る
- この物件情報をLINEで送る
-
スマホで物件情報を見る
物件番号・取り扱い支店
- 物件番号
- 8800461-001








比較的交通量の多い通り沿いのテナントです♪
現在契約中のため、内覧などはご相談ください。テナント探しもニッショーにお任せください。