貸事務所 勝幡ビル
お気に入り登録
0人がお気に入り登録
| 賃料 共益費等 |
保証金/償却 権利金 |
最寄り駅 | 所在地 | 種別 | 面積 (坪数) |
築年数 | 引渡日 |
|---|---|---|---|---|---|---|---|
| 7.7万円 3,300円 |
15.4万円/15.4万円 ----- |
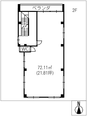
名鉄津島線勝幡駅歩2分 | 愛知県愛西市勝幡町流 | 貸事務所 | 72.11㎡ (約21.81坪) |
築43年 | 即 可 |
賃料7.7万円(共益費等 3,300円)
保証金15.4万円 償却15.4万円 権利金----- 駐車場-----
愛知県愛西市勝幡町流
名鉄津島線勝幡駅歩2分
物件情報
情報更新日 : 2026/02/02 ※次回更新は記載の「情報更新日」より8日以内に行います。
賃料等条件
-
賃料
7.7万円 -
㎡・坪単価
約1067.8円/㎡ 約3530.4円/坪 -
共益費
3,300円 -
保証金/償却
15.4万円/15.4万円 -
権利金
----- -
駐車場
----- -
その他条件
町内費 350円/月
決済手数料 550円/月 -
引渡日
即 可 -
備考
保証会社利用必須(初回:月額賃料100%、毎年:月額賃料10%、毎月:決済手数料550円)
照明器具・WC有、利便性良し
物件概要
-
種別
貸事務所 -
面積(坪数)
72.11㎡(約21.81坪) -
構造/階数
鉄骨造 4階建/2階 -
築年
1982年(昭和57年)6月 -
設備
要お問い合わせ -
ガス
プロパンガスエリア -
用途地域
第一種住居地域 -
取引形態
仲介 -
希望業種
各種事務所、教室等
- 物品販売
- 美容・健康・介護関係
- 塾・教室関係
-
交通
名鉄津島線勝幡駅歩2分 -
所在地
愛知県愛西市勝幡町流
※用途地域により業種に制限があります。事前に確認が必要です。
- この物件情報をメールで送る
- この物件情報をLINEで送る
-
スマホで物件情報を見る
物件番号・取り扱い支店
- 物件番号
- 8600679-002












名鉄勝幡駅まで徒歩2分の貸事務所が登場!
近隣に店舗が多い利便性の高い立地です♪