貸店舗事務所 トータスビル 店舗
お気に入り登録
0人がお気に入り登録
| 賃料 共益費等 |
保証金/償却 権利金 |
最寄り駅 | 所在地 | 種別 | 面積 (坪数) |
築年数 | 引渡日 |
|---|---|---|---|---|---|---|---|
| 108,900円 家賃込 |
27万円/29.7万円 ----- |
全線名古屋駅歩10分 地下鉄鶴舞線浅間町駅歩9分 地下鉄桜通線国際センター駅歩11分 |
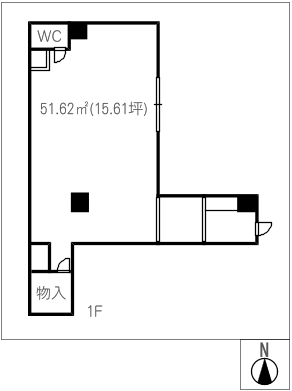
愛知県名古屋市西区新道2丁目 | 貸店舗事務所 | 51.62㎡ (約15.61坪) |
築35年 | 相 談 |
賃料108,900円(共益費等 家賃込)
保証金27万円 償却29.7万円 権利金----- 駐車場-----
愛知県名古屋市西区新道2丁目
全線名古屋駅歩10分/地下鉄鶴舞線浅間町駅歩9分/地下鉄桜通線国際センター駅歩11分
この物件のおすすめポイント
- 角地
物件情報
情報更新日 : 2026/02/01 ※次回更新は記載の「情報更新日」より8日以内に行います。
賃料等条件
-
賃料
108,900円 -
㎡・坪単価
約2109.6円/㎡ 約6976.2円/坪 -
共益費
家賃込 -
保証金/償却
27万円/29.7万円 -
権利金
----- -
駐車場
----- -
その他条件
町内費 300円/月
決済手数料 330円/月 -
引渡日
相 談 -
備考
保証会社利用必須(初回保証料総賃料の50%、更新料10,000円/年、決済手数料330円/月)
2年未満解約は違約金家賃の1ヶ月分相当支払あり
物件概要
-
種別
貸店舗事務所 -
面積(坪数)
51.62㎡(約15.61坪) -
構造/階数
鉄筋造 6階建/1階 -
築年
1991年(平成3年)2月 -
設備
エレベーター -
ガス
都市ガスエリア -
用途地域
商業地域 -
取引形態
仲介 -
希望業種
各種店舗・事務所
- 物品販売
-
交通
全線名古屋駅歩10分/地下鉄鶴舞線浅間町駅歩9分/地下鉄桜通線国際センター駅歩11分 -
所在地
愛知県名古屋市西区新道2丁目
※用途地域により業種に制限があります。事前に確認が必要です。
周辺環境
なごや小学校550m / 菊井郵便局320m / 菊井クリニック240m / 丸一ストアー320m / セブンイレブン320m
- この物件情報をメールで送る
- この物件情報をLINEで送る
-
スマホで物件情報を見る
物件番号・取り扱い支店
- 物件番号
- 8501104-002




1階店舗・事務所です。
飲食は不可となります。業種によりましては条件変更になる場合がございます