貸店舗事務所 NEUA MEIEKI
お気に入り登録
0人がお気に入り登録
| 賃料 共益費等 |
保証金/償却 礼金 |
最寄り駅 | 所在地 | 種別 | 面積 (坪数) |
築年数 | 引渡日 |
|---|---|---|---|---|---|---|---|
| 481,827円 ----- |
1,927,308円/1,927,308円 963,654円 |
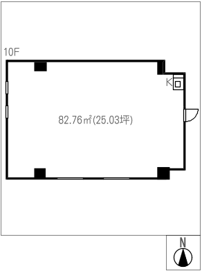
全線名古屋駅歩4分 | 愛知県名古屋市中村区椿町 | 貸店舗事務所 | 82.76㎡ (約25.03坪) |
築1年未満 | 2026年1月15日頃 |
賃料481,827円(共益費等 -----)
保証金1,927,308円 償却1,927,308円 礼金963,654円 駐車場-----
愛知県名古屋市中村区椿町
全線名古屋駅歩4分
物件情報
情報更新日 : 2025/11/07 ※次回更新は記載の「情報更新日」より8日以内に行います。
賃料等条件
-
賃料
481,827円 -
㎡・坪単価
約5821.9円/㎡ 約19249.9円/坪 -
共益費
----- -
保証金/償却
1,927,308円/1,927,308円 -
礼金
963,654円 -
駐車場
----- -
その他条件
月額保証料 4,818円/月 -
引渡日
2026年1月15日頃 -
備考
保証会社利用必須(初回保証料総賃料の100%、月額保証料総賃料の1%)
構造は地下1階地上10階建
物件概要
-
種別
貸店舗事務所 -
面積(坪数)
82.76㎡(約25.03坪) -
構造/階数
鉄骨造 10階建/10階 -
築年
2026年(令和8年)1月 -
設備
エアコン1基・IHコンロ・エレベーター・給湯 -
ガス
なし -
用途地域
商業地域 -
取引形態
仲介 -
希望業種
各種店舗・事務所
-
交通
全線名古屋駅歩4分 -
所在地
愛知県名古屋市中村区椿町
※用途地域により業種に制限があります。事前に確認が必要です。
- この物件情報をメールで送る
- この物件情報をLINEで送る
-
スマホで物件情報を見る
物件番号・取り扱い支店
- 物件番号
- 8501092-020


◆木の特性を生かしたZEB認定の複合型オフィス
■職場の快適性を支援■入居するだけで温暖化対策に参画できます■お問い合わせはニッショー名古屋駅前支店まで■TEL052-569ー0900