貸店舗事務所 神戸町丈六道店舗
お気に入り登録
0人がお気に入り登録
| 賃料 共益費等 |
保証金/償却 礼金 |
最寄り駅 | 所在地 | 種別 | 面積 (坪数) |
築年数 | 引渡日 |
|---|---|---|---|---|---|---|---|
| 6.6万円 ----- |
12万円/----- 6.6万円 |
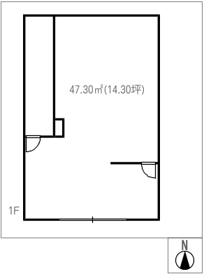
養老鉄道養老線広神戸駅歩12分 | 岐阜県安八郡神戸町大字丈六道 | 貸店舗事務所 | 47.30㎡ (約14.30坪) |
築24年 | 相 談 |
賃料6.6万円(共益費等 -----)
保証金12万円 償却----- 礼金6.6万円 駐車場敷地内(家賃込)
岐阜県安八郡神戸町大字丈六道
養老鉄道養老線広神戸駅歩12分
この物件のおすすめポイント
- 駐車場あり
物件情報
情報更新日 : 2026/01/25 ※次回更新は記載の「情報更新日」より8日以内に行います。
賃料等条件
-
賃料
6.6万円 -
㎡・坪単価
約1395.3円/㎡ 約4615.3円/坪 -
共益費
----- -
保証金/償却
12万円/----- -
礼金
6.6万円 -
駐車場
敷地内(家賃込) -
その他条件
要お問い合わせ -
引渡日
相 談 -
備考
保証会社利用必須(初回保証料総家賃の100%、年間保証料総賃料の10%/年、事務手数料550円/月)
駐車は2台分共有
物件概要
-
種別
貸店舗事務所 -
面積(坪数)
47.30㎡(約14.30坪) -
構造/階数
鉄骨造 2階建/1階 -
築年
2001年(平成13年)12月 -
設備
要お問い合わせ -
ガス
なし -
用途地域
準工業地域 -
取引形態
仲介 -
希望業種
各種店舗・事務所
-
交通
養老鉄道養老線広神戸駅歩12分 -
所在地
岐阜県安八郡神戸町大字丈六道
※用途地域により業種に制限があります。事前に確認が必要です。
- この物件情報をメールで送る
- この物件情報をLINEで送る
-
スマホで物件情報を見る
物件番号・取り扱い支店
- 物件番号
- 8201553-001














現状渡しです♪