貸店舗事務所 岐阜県大垣市三津屋町4丁目の物件情報
お気に入り登録
2人がお気に入り登録
| 賃料 共益費等 |
保証金/償却 権利金 |
最寄り駅 | 所在地 | 種別 | 面積 (坪数) |
築年数 | 引渡日 |
|---|---|---|---|---|---|---|---|
| 7万円 ----- |
21万円/----- ----- |
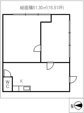
近鉄バス三津屋停歩3分 | 岐阜県大垣市三津屋町4丁目 | 貸店舗事務所 | 51.30㎡ (約15.51坪) |
築41年 | 即 可 |
賃料7万円(共益費等 -----)
保証金21万円 償却----- 権利金----- 駐車場近隣50m(4,000円)
岐阜県大垣市三津屋町4丁目
近鉄バス三津屋停歩3分
この物件のおすすめポイント
- 駐車場あり
物件情報
情報更新日 : 2025/11/14 ※次回更新は記載の「情報更新日」より8日以内に行います。
賃料等条件
-
賃料
7万円 -
㎡・坪単価
約1364.5円/㎡ 約4513.2円/坪 -
共益費
----- -
保証金/償却
21万円/----- -
権利金
----- -
駐車場
近隣50m(4,000円) -
その他条件
水道料 2,000円/月 -
引渡日
即 可 -
備考
駐車場は敷地外(1台4,000円)水道料は業種によって変動します
物件概要
-
種別
貸店舗事務所 -
面積(坪数)
51.30㎡(約15.51坪) -
構造/階数
鉄骨造 2階建/2階 -
築年
1984年(昭和59年)5月 -
設備
要お問い合わせ -
ガス
プロパンガスエリア -
用途地域
要お問い合わせ -
取引形態
仲介 -
希望業種
各種店舗・事務所
-
交通
近鉄バス三津屋停歩3分 -
所在地
岐阜県大垣市三津屋町4丁目
※用途地域により業種に制限があります。事前に確認が必要です。
- この物件情報をメールで送る
- この物件情報をLINEで送る
-
スマホで物件情報を見る
物件番号・取り扱い支店
- 物件番号
- 8200776-002












すぐに事務所として使えます!
駐車台数もご相談ください。