貸店舗 シティ・ドゥエル店舗 ニッショー限定物件
お気に入り登録
0人がお気に入り登録
360°パノラマビュー
| 賃料 共益費等 |
保証金/償却 権利金 |
最寄り駅 | 所在地 | 種別 | 面積 (坪数) |
築年数 | 引渡日 |
|---|---|---|---|---|---|---|---|
| 9.9万円 6,600円 |
18万円/----- ----- |
全線豊橋駅歩19分 豊鉄バス汐田橋停歩2分 |
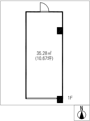
愛知県豊橋市牟呂町字扇田 | 貸店舗 | 35.28㎡ (約10.67坪) |
築31年 | 即 可 |
賃料9.9万円(共益費等 6,600円)
保証金18万円 償却----- 権利金----- 駐車場敷地内(家賃込)
愛知県豊橋市牟呂町字扇田
全線豊橋駅歩19分/豊鉄バス汐田橋停歩2分
この物件のおすすめポイント
- 駐車場あり
物件情報
情報更新日 : 2025/11/28 ※次回更新は記載の「情報更新日」より8日以内に行います。
賃料等条件
-
賃料
9.9万円 -
㎡・坪単価
約2806.1円/㎡ 約9278.3円/坪 -
共益費
6,600円 -
保証金/償却
18万円/----- -
権利金
----- -
駐車場
敷地内(家賃込) -
その他条件
要お問い合わせ -
引渡日
即 可 -
備考
保証会社利用必須(初回保証料総賃料の80%、更新保証料総賃料の10%(最低10,000円)/年)
2台目駐車料4,400円
物件概要
-
種別
貸店舗 -
面積(坪数)
35.28㎡(約10.67坪) -
構造/階数
鉄筋造 5階建/1階 -
築年
1994年(平成6年)10月 -
設備
要お問い合わせ -
ガス
プロパンガスエリア -
用途地域
準工業地域 -
取引形態
仲介 -
希望業種
各種店舗
-
交通
全線豊橋駅歩19分/豊鉄バス汐田橋停歩2分 -
所在地
愛知県豊橋市牟呂町字扇田
※用途地域により業種に制限があります。事前に確認が必要です。
周辺環境
羽根井小学校708m / TSUTAYA281m / 精文館書店281m / 岡崎信用金庫544m / 成田記念病院1,048m / ヤマナカ158m / ファミリーマート252m / 豊鉄バス汐田橋停143m
- この物件情報をメールで送る
- この物件情報をLINEで送る
-
スマホで物件情報を見る
物件番号・取り扱い支店
- 物件番号
- 6702815-006









豊橋中心部のテナント物件です。内見も可能です。
壁・床・天井の立ち上げまでは貸主様にて施工予定。前面ガラスや表面材、水回り、空調、照明等は借主様にてご準備いただきます。