貸事務所 丸之内貸事務所 ニッショー限定物件
お気に入り登録
0人がお気に入り登録
| 賃料 共益費等 |
保証金/償却 礼金 |
最寄り駅 | 所在地 | 種別 | 面積 (坪数) |
築年数 | 引渡日 |
|---|---|---|---|---|---|---|---|
| 13.2万円 実費 |
24万円/13.2万円 13.2万円 |
近鉄名古屋線津新町駅歩15分 近鉄名古屋線津駅歩24分 |
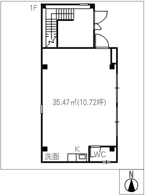
三重県津市丸之内 | 貸事務所 | 35.47㎡ (約10.72坪) |
築30年 | 即 可 |
賃料13.2万円(共益費等 実費)
保証金24万円 償却13.2万円 礼金13.2万円 駐車場敷地内(3台込)
三重県津市丸之内
近鉄名古屋線津新町駅歩15分/近鉄名古屋線津駅歩24分
この物件のおすすめポイント
- 駐車場あり
物件情報
情報更新日 : 2026/01/12 ※次回更新は記載の「情報更新日」より8日以内に行います。
賃料等条件
-
賃料
13.2万円 -
㎡・坪単価
約3721.4円/㎡ 約12313.4円/坪 -
共益費
実費 -
保証金/償却
24万円/13.2万円 -
礼金
13.2万円 -
駐車場
敷地内(3台込) -
その他条件
要お問い合わせ -
引渡日
即 可 -
備考
保証会社利用必須(初回保証料総賃料100%、更新保証料総賃料10%/年)
駐車場は3台込
物件概要
-
種別
貸事務所 -
面積(坪数)
35.47㎡(約10.72坪) -
構造/階数
鉄骨造 3階建/1階 -
築年
1995年(平成7年)2月 -
設備
要お問い合わせ -
ガス
都市ガスエリア -
用途地域
商業地域 -
取引形態
仲介 -
希望業種
各種事務所(飲食店不可)
-
交通
近鉄名古屋線津新町駅歩15分/近鉄名古屋線津駅歩24分 -
所在地
三重県津市丸之内
※用途地域により業種に制限があります。事前に確認が必要です。
- この物件情報をメールで送る
- この物件情報をLINEで送る
-
スマホで物件情報を見る
物件番号・取り扱い支店
- 物件番号
- 6404464-001
















周辺に官公庁が多数ある便利な立地。
駐車場も3台駐車可。お問い合わせは、ニッショー津支店まで。TEL:059-229-0311