貸事務所 MT倉庫付事務所
お気に入り登録
0人がお気に入り登録
| 賃料 共益費等 |
保証金/償却 権利金 |
最寄り駅 | 所在地 | 種別 | 面積 (坪数) |
築年数 | 引渡日 |
|---|---|---|---|---|---|---|---|
| 473,633円 家賃込 |
3,789,064円/----- ----- |
名鉄瀬戸線旭前駅歩6分 名鉄瀬戸線尾張旭駅歩17分 名鉄瀬戸線印場駅歩17分 |
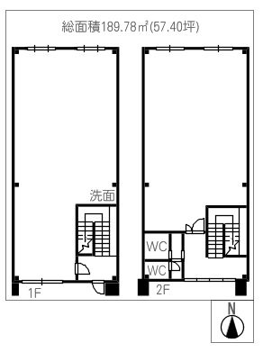
愛知県尾張旭市城前町4丁目 | 貸事務所 | 189.78㎡ (約57.40坪) |
築1年未満 | 相 談 |
賃料473,633円(共益費等 家賃込)
保証金3,789,064円 償却----- 権利金----- 駐車場敷地内(家賃込)
愛知県尾張旭市城前町4丁目
名鉄瀬戸線旭前駅歩6分/名鉄瀬戸線尾張旭駅歩17分/名鉄瀬戸線印場駅歩17分
この物件のおすすめポイント
- 大通り沿い
- 駐車場あり
物件情報
情報更新日 : 2026/02/01 ※次回更新は記載の「情報更新日」より8日以内に行います。
賃料等条件
-
賃料
473,633円 -
㎡・坪単価
約2495.6円/㎡ 約8251.4円/坪 -
共益費
家賃込 -
保証金/償却
3,789,064円/----- -
権利金
----- -
駐車場
敷地内(家賃込) -
その他条件
要お問い合わせ -
引渡日
相 談 -
備考
保証会社利用必須(初回保証料総賃料100%、更新保証料総賃料10%/年)
駐車場は2台込、用途地域は第二種住居地域・第一種住居地域
物件概要
-
種別
貸事務所 -
面積(坪数)
189.78㎡(約57.40坪) -
構造/階数
鉄骨造 2階建/1階 -
築年
2026年(令和8年)3月 -
設備
エアコン1基 -
ガス
なし -
用途地域
第二種住居地域 -
取引形態
仲介 -
希望業種
各種事務所
-
交通
名鉄瀬戸線旭前駅歩6分/名鉄瀬戸線尾張旭駅歩17分/名鉄瀬戸線印場駅歩17分 -
所在地
愛知県尾張旭市城前町4丁目
※用途地域により業種に制限があります。事前に確認が必要です。
- この物件情報をメールで送る
- この物件情報をLINEで送る
-
スマホで物件情報を見る
物件番号・取り扱い支店
- 物件番号
- 6202055-001





旭前駅徒歩圏内の新築倉庫付事務所です♪
瀬戸街道沿いの立地で視認性の高い物件です!内装はトイレ・エアコン付きです。