貸店舗事務所 稲沢市緑町4丁目貸店舗
お気に入り登録
0人がお気に入り登録
| 賃料 共益費等 |
保証金/償却 権利金 |
最寄り駅 | 所在地 | 種別 | 面積 (坪数) |
築年数 | 引渡日 |
|---|---|---|---|---|---|---|---|
| 85,800円 ----- |
31.2万円/343,200円 ----- |
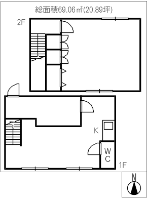
名鉄名古屋本線奥田駅歩19分 | 愛知県稲沢市緑町4丁目 | 貸店舗事務所 | 69.06㎡ (約20.89坪) |
築19年 | 即 可 |
賃料85,800円(共益費等 -----)
保証金31.2万円 償却343,200円 権利金----- 駐車場-----
愛知県稲沢市緑町4丁目
名鉄名古屋本線奥田駅歩19分
物件情報
情報更新日 : 2025/11/22 ※次回更新は記載の「情報更新日」より8日以内に行います。
賃料等条件
-
賃料
85,800円 -
㎡・坪単価
約1242.3円/㎡ 約4107.2円/坪 -
共益費
----- -
保証金/償却
31.2万円/343,200円 -
権利金
----- -
駐車場
----- -
その他条件
要お問い合わせ -
引渡日
即 可 -
備考
保証会社利用必須(初回保証料総賃料の100%、継続保証料10,000円/年、決済手数料550円/月)
飲食業、デイサービス等許認可事業、無人営業、24時間営業は不可
物件概要
-
種別
貸店舗事務所 -
面積(坪数)
69.06㎡(約20.89坪) -
構造/階数
木造 2階建/1階 -
築年
2006年(平成18年)6月 -
設備
要お問い合わせ -
ガス
なし -
用途地域
第一種住居地域 -
取引形態
仲介 -
希望業種
美容サロン・ヨガ・パーソナルスタジオ・整体等(デイサービス・飲食業等不可)
-
交通
名鉄名古屋本線奥田駅歩19分 -
所在地
愛知県稲沢市緑町4丁目
※用途地域により業種に制限があります。事前に確認が必要です。
- この物件情報をメールで送る
- この物件情報をLINEで送る
-
スマホで物件情報を見る
物件番号・取り扱い支店
- 物件番号
- 6001809-001



















