貸店舗 マリーンハイツ店舗
お気に入り登録
0人がお気に入り登録
| 賃料 共益費等 |
保証金/償却 礼金 |
最寄り駅 | 所在地 | 種別 | 面積 (坪数) |
築年数 | 引渡日 |
|---|---|---|---|---|---|---|---|
| 22万円 3,300円 |
40万円/22万円 22万円 |
JR飯田線豊川駅歩9分 名鉄豊川線稲荷口駅歩7分 |
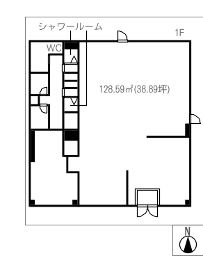
愛知県豊川市中央通2丁目 | 貸店舗 | 128.59㎡ (約38.89坪) |
築38年 | 相 談 |
賃料22万円(共益費等 3,300円)
保証金40万円 償却22万円 礼金22万円 駐車場敷地内(3,300円)
愛知県豊川市中央通2丁目
JR飯田線豊川駅歩9分/名鉄豊川線稲荷口駅歩7分
この物件のおすすめポイント
- 駐車場あり
物件情報
情報更新日 : 2025/11/14 ※次回更新は記載の「情報更新日」より8日以内に行います。
賃料等条件
-
賃料
22万円 -
㎡・坪単価
約1710.8円/㎡ 約5656.9円/坪 -
共益費
3,300円 -
保証金/償却
40万円/22万円 -
礼金
22万円 -
駐車場
敷地内(3,300円) -
その他条件
振替手数料 550円/月 -
引渡日
相 談 -
備考
保証会社利用必須(初回保証料総賃料80%~、年間更新保証料10,000円~、口座振替手数料550円/月)
駐車は1台\3,300/月・契約事務手数料\5,500別途要、ペット飼育時保証金・償却変更有り
物件概要
-
種別
貸店舗 -
面積(坪数)
128.59㎡(約38.89坪) -
構造/階数
鉄筋造 3階建/1階 -
築年
1987年(昭和62年)10月 -
設備
要お問い合わせ -
ガス
都市ガスエリア -
用途地域
近隣商業地域 -
取引形態
仲介 -
希望業種
各種店舗
-
交通
JR飯田線豊川駅歩9分/名鉄豊川線稲荷口駅歩7分 -
所在地
愛知県豊川市中央通2丁目
※用途地域により業種に制限があります。事前に確認が必要です。
- この物件情報をメールで送る
- この物件情報をLINEで送る
-
スマホで物件情報を見る
物件番号・取り扱い支店
- 物件番号
- 5404289-001


