倉庫付貸事務 愛知県名古屋市港区大西1丁目の物件情報
お気に入り登録
0人がお気に入り登録
| 賃料 共益費等 |
保証金/償却 権利金 |
最寄り駅 | 所在地 | 種別 | 面積 (坪数) |
築年数 | 引渡日 |
|---|---|---|---|---|---|---|---|
| 16万円 ----- |
48万円/24万円 ----- |
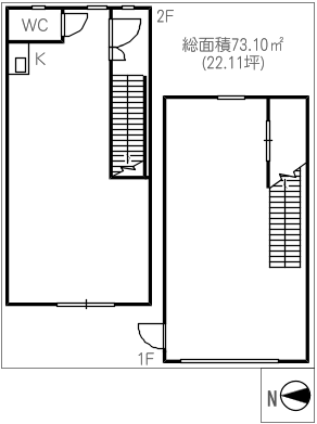
要お問い合わせ | 愛知県名古屋市港区大西1丁目 | 倉庫付貸事務 | 73.10㎡ (約22.11坪) |
築1年未満 | 即 可 |
賃料16万円(共益費等 -----)
保証金48万円 償却24万円 権利金----- 駐車場敷地内(無料)
愛知県名古屋市港区大西1丁目
要お問い合わせ
この物件のおすすめポイント
- 駐車場あり
物件情報
情報更新日 : 2025/10/27 ※次回更新は記載の「情報更新日」より8日以内に行います。
賃料等条件
-
賃料
16万円 -
㎡・坪単価
約2188.7円/㎡ 約7236.5円/坪 -
共益費
----- -
保証金/償却
48万円/24万円 -
権利金
----- -
駐車場
敷地内(無料) -
その他条件
要お問い合わせ -
引渡日
即 可 -
備考
物件概要
-
種別
倉庫付貸事務 -
面積(坪数)
73.10㎡(約22.11坪) -
構造/階数
鉄骨造 2階建/1階 -
築年
2025年(令和7年)9月 -
設備
エアコン1基・TVモニター付インターホン・防犯カメラ・照明器具・ガレージ電動シャッター -
ガス
プロパンガスエリア -
用途地域
準工業地域 -
取引形態
仲介 -
希望業種
各種事務所
-
交通
要お問い合わせ -
所在地
愛知県名古屋市港区大西1丁目
※用途地域により業種に制限があります。事前に確認が必要です。
- この物件情報をメールで送る
- この物件情報をLINEで送る
-
スマホで物件情報を見る
物件番号・取り扱い支店
- 物件番号
- 5002616-001



















