貸店舗事務所 中善ビル ニッショー限定物件
お気に入り登録
0人がお気に入り登録
| 賃料 共益費等 |
保証金/償却 権利金 |
最寄り駅 | 所在地 | 種別 | 面積 (坪数) |
築年数 | 引渡日 |
|---|---|---|---|---|---|---|---|
| 6.6万円 家賃込 |
18万円/9.9万円 ----- |
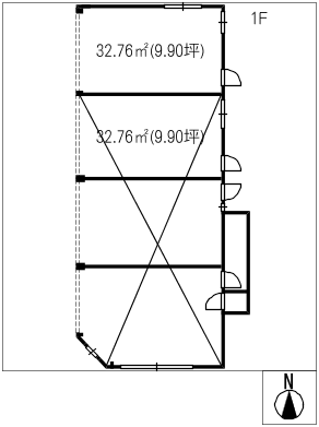
地下鉄鶴舞線浅間町駅歩8分 | 愛知県名古屋市西区菊井1丁目 | 貸店舗事務所 | 32.76㎡ (約9.90坪) |
築40年 | 即 可 |
賃料6.6万円(共益費等 家賃込)
保証金18万円 償却9.9万円 権利金----- 駐車場-----
愛知県名古屋市西区菊井1丁目
地下鉄鶴舞線浅間町駅歩8分
物件情報
情報更新日 : 2026/01/28 ※次回更新は記載の「情報更新日」より8日以内に行います。
賃料等条件
-
賃料
6.6万円 -
㎡・坪単価
約2014.6円/㎡ 約6666.6円/坪 -
共益費
家賃込 -
保証金/償却
18万円/9.9万円 -
権利金
----- -
駐車場
----- -
その他条件
町内費 500円/月
振替手数料 550円/月 -
引渡日
即 可 -
備考
保証会社利用必須(初回保証料:総賃料の80%(最低30,000円)、継続保証料:総賃料の10%(最低10,000円/年)、口座振替手数料:月額550円)
物件概要
-
種別
貸店舗事務所 -
面積(坪数)
32.76㎡(約9.90坪) -
構造/階数
鉄骨造 3階建/1階 -
築年
1986年(昭和61年)1月 -
設備
要お問い合わせ -
ガス
都市ガスエリア -
用途地域
近隣商業地域 -
取引形態
仲介 -
希望業種
各種店舗・事務所
-
交通
地下鉄鶴舞線浅間町駅歩8分 -
所在地
愛知県名古屋市西区菊井1丁目
※用途地域により業種に制限があります。事前に確認が必要です。
- この物件情報をメールで送る
- この物件情報をLINEで送る
-
スマホで物件情報を見る
物件番号・取り扱い支店
- 物件番号
- 4901679-001












♪♪♪各種店舗・事務所におすすめです♪♪♪
●ニッショー浄心支店052‐523‐0711まで