貸店舗 カネスエ幸田店内貸店舗
お気に入り登録
0人がお気に入り登録
| 賃料 共益費等 |
敷金/償却 権利金 |
最寄り駅 | 所在地 | 種別 | 面積 (坪数) |
築年数 | 引渡日 |
|---|---|---|---|---|---|---|---|
| 8.8万円 ----- |
48万円/----- ----- |
JR東海道本線相見駅歩32分 JR東海道本線幸田駅歩35分 |
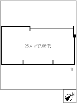
愛知県額田郡幸田町大字大草字赤石 | 貸店舗 | 25.41㎡ (約7.68坪) |
築2年 | 即 可 |
賃料8.8万円(共益費等 -----)
敷金48万円 償却----- 権利金----- 駐車場敷地内(家賃込)
愛知県額田郡幸田町大字大草字赤石
JR東海道本線相見駅歩32分/JR東海道本線幸田駅歩35分
この物件のおすすめポイント
- 駐車場あり
物件情報
情報更新日 : 2025/11/28 ※次回更新は記載の「情報更新日」より8日以内に行います。
賃料等条件
-
賃料
8.8万円 -
㎡・坪単価
約3463.2円/㎡ 約11458.3円/坪 -
共益費
----- -
敷金/償却
48万円/----- -
権利金
----- -
駐車場
敷地内(家賃込) -
その他条件
要お問い合わせ -
引渡日
即 可 -
備考
保証会社利用必須(保証料要)
駐車場従業員用は1台5,500円/月、P台数相談、トイレは共用
物件概要
-
種別
貸店舗 -
面積(坪数)
25.41㎡(約7.68坪) -
構造/階数
鉄骨造 1階建/1階 -
築年
2023年(令和5年)10月 -
設備
要お問い合わせ -
ガス
なし -
用途地域
近隣商業地域 -
取引形態
仲介 -
希望業種
要お問い合わせ
-
交通
JR東海道本線相見駅歩32分/JR東海道本線幸田駅歩35分 -
所在地
愛知県額田郡幸田町大字大草字赤石
※用途地域により業種に制限があります。事前に確認が必要です。
- この物件情報をメールで送る
- この物件情報をLINEで送る
-
スマホで物件情報を見る
物件番号・取り扱い支店
- 物件番号
- 4702861-001











