貸事務所 高浜市八幡町貸事務所
お気に入り登録
0人がお気に入り登録
| 賃料 共益費等 |
保証金/償却 礼金 |
最寄り駅 | 所在地 | 種別 | 面積 (坪数) |
築年数 | 引渡日 |
|---|---|---|---|---|---|---|---|
| 150,700円 ----- |
30万円/16.5万円 150,700円 |
名鉄三河線吉浜駅歩9分 | 愛知県高浜市八幡町3丁目 | 貸事務所 | 56.92㎡ (約17.21坪) |
築7年 | 即 可 |
賃料150,700円(共益費等 -----)
保証金30万円 償却16.5万円 礼金150,700円 駐車場-----
愛知県高浜市八幡町3丁目
名鉄三河線吉浜駅歩9分
物件情報
情報更新日 : 2025/11/22 ※次回更新は記載の「情報更新日」より8日以内に行います。
賃料等条件
-
賃料
150,700円 -
㎡・坪単価
約2647.5円/㎡ 約8756.5円/坪 -
共益費
----- -
保証金/償却
30万円/16.5万円 -
礼金
150,700円 -
駐車場
----- -
その他条件
要お問い合わせ -
引渡日
即 可 -
備考
保証会社利用必須(初回保証料総賃料の100%)
構造は地下1階地上2階建
物件概要
-
種別
貸事務所 -
面積(坪数)
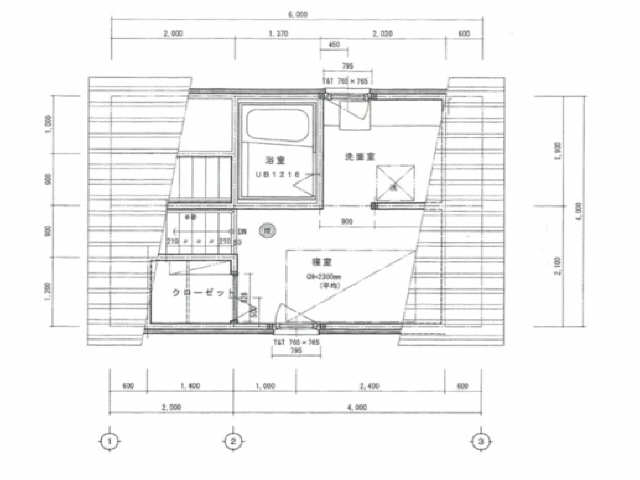
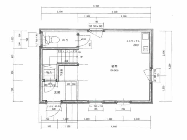
56.92㎡(約17.21坪) -
構造/階数
木造 2階建/1階 -
築年
2018年(平成30年)10月 -
設備
要お問い合わせ -
ガス
プロパンガスエリア -
用途地域
第一種住居地域 -
取引形態
仲介 -
希望業種
各種事務所
-
交通
名鉄三河線吉浜駅歩9分 -
所在地
愛知県高浜市八幡町3丁目
※用途地域により業種に制限があります。事前に確認が必要です。
- この物件情報をメールで送る
- この物件情報をLINEで送る
-
スマホで物件情報を見る
物件番号・取り扱い支店
- 物件番号
- 4603378-001




