貸店舗 THE TERRACE
お気に入り登録
0人がお気に入り登録
| 賃料 共益費等 |
敷金/償却 権利金 |
最寄り駅 | 所在地 | 種別 | 面積 (坪数) |
築年数 | 引渡日 |
|---|---|---|---|---|---|---|---|
| 239,760円 家賃込 |
791,208円/527,472円 ----- |
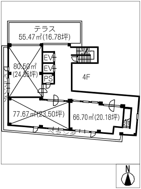
JR東海道本線刈谷駅歩5分 | 愛知県刈谷市相生町1丁目 | 貸店舗 | 66.70㎡ (約20.18坪) |
築7年 | 相 談 |
賃料239,760円(共益費等 家賃込)
敷金791,208円 償却527,472円 権利金----- 駐車場-----
愛知県刈谷市相生町1丁目
JR東海道本線刈谷駅歩5分
物件情報
情報更新日 : 2025/11/22 ※次回更新は記載の「情報更新日」より8日以内に行います。
賃料等条件
-
賃料
239,760円 -
㎡・坪単価
約3594.6円/㎡ 約11881.0円/坪 -
共益費
家賃込 -
敷金/償却
791,208円/527,472円 -
権利金
----- -
駐車場
----- -
その他条件
要お問い合わせ -
引渡日
相 談 -
備考
物件概要
-
種別
貸店舗 -
面積(坪数)
66.70㎡(約20.18坪) -
構造/階数
鉄筋造 4階建/4階 -
築年
2018年(平成30年)1月 -
設備
エレベーター -
ガス
プロパンガスエリア -
用途地域
要お問い合わせ -
取引形態
仲介 -
希望業種
各種店舗・物販・飲食・美容関係等(カラオケ禁止)
-
交通
JR東海道本線刈谷駅歩5分 -
所在地
愛知県刈谷市相生町1丁目
※用途地域により業種に制限があります。事前に確認が必要です。
- この物件情報をメールで送る
- この物件情報をLINEで送る
-
スマホで物件情報を見る
物件番号・取り扱い支店
- 物件番号
- 4602707-014



駅近くの好立地です。
テナント・事務所