貸店舗 サンハンダビル 店舗
お気に入り登録
0人がお気に入り登録
| 賃料 共益費等 |
保証金/償却 権利金 |
最寄り駅 | 所在地 | 種別 | 面積 (坪数) |
築年数 | 引渡日 |
|---|---|---|---|---|---|---|---|
| 9.9万円 ----- |
25万円/9.9万円 ----- |
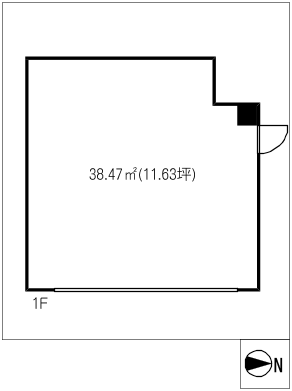
名鉄河和線住吉町駅歩2分 | 愛知県半田市出口町1丁目 | 貸店舗 | 38.47㎡ (約11.63坪) |
築40年 | 相 談 |
賃料9.9万円(共益費等 -----)
保証金25万円 償却9.9万円 権利金----- 駐車場敷地内(家賃込)
愛知県半田市出口町1丁目
名鉄河和線住吉町駅歩2分
この物件のおすすめポイント
- 夜間営業相談可
- 重飲食を含む飲食店 ?
- 駐車場あり
物件情報
情報更新日 : 2025/11/25 ※次回更新は記載の「情報更新日」より8日以内に行います。
賃料等条件
-
賃料
9.9万円 -
㎡・坪単価
約2573.4円/㎡ 約8512.4円/坪 -
共益費
----- -
保証金/償却
25万円/9.9万円 -
権利金
----- -
駐車場
敷地内(家賃込) -
その他条件
共益費・駐車料込み -
引渡日
相 談 -
備考
物件概要
-
種別
貸店舗 -
面積(坪数)
38.47㎡(約11.63坪) -
構造/階数
鉄骨造 1階建/1階 -
築年
1985年(昭和60年)3月 -
設備
要お問い合わせ -
ガス
都市ガスエリア -
用途地域
要お問い合わせ -
取引形態
仲介 -
希望業種
要お問い合わせ
- 夜間営業相談可
- 軽飲食
- 重飲食を含む飲食店
-
交通
名鉄河和線住吉町駅歩2分 -
所在地
愛知県半田市出口町1丁目
※用途地域により業種に制限があります。事前に確認が必要です。
- この物件情報をメールで送る
- この物件情報をLINEで送る
-
スマホで物件情報を見る
物件番号・取り扱い支店
- 物件番号
- 4000937-004




名鉄住吉町駅近く
飲食店の居抜き物件です!