貸倉庫 泉町山田倉庫
お気に入り登録
0人がお気に入り登録
360°パノラマビュー
| 賃料 共益費等 |
保証金/償却 礼金 |
最寄り駅 | 所在地 | 種別 | 面積 (坪数) |
築年数 | 引渡日 |
|---|---|---|---|---|---|---|---|
| 17.8万円 家賃込 |
45万円/----- 17.8万円 |
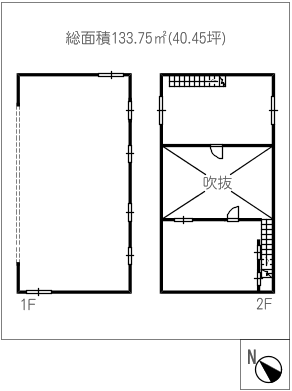
とよたおいでんバス香九礼停歩3分 | 愛知県豊田市泉町山田 | 貸倉庫 | 133.75㎡ (約40.45坪) |
築30年 | 相 談 |
賃料17.8万円(共益費等 家賃込)
保証金45万円 償却----- 礼金17.8万円 駐車場敷地内(家賃込)
愛知県豊田市泉町山田
とよたおいでんバス香九礼停歩3分
この物件のおすすめポイント
- 駐車場あり
物件情報
情報更新日 : 2026/02/01 ※次回更新は記載の「情報更新日」より8日以内に行います。
賃料等条件
-
賃料
17.8万円 -
㎡・坪単価
約1330.8円/㎡ 約4400.4円/坪 -
共益費
家賃込 -
保証金/償却
45万円/----- -
礼金
17.8万円 -
駐車場
敷地内(家賃込) -
その他条件
決済手数料 550円/月 -
引渡日
相 談 -
備考
定期建物賃貸借:契約期間3年間
保証会社利用必須(初回保証料総賃料の100%、更新保証料総賃料の10%/年、口座振替手数料550円/月)
駐車は2台込
物件概要
-
種別
貸倉庫 -
面積(坪数)
133.75㎡(約40.45坪) -
構造/階数
鉄骨造 2階建/1階 -
築年
1995年(平成7年)7月 -
設備
要お問い合わせ -
ガス
なし -
用途地域
第一種低層住居専用地域 -
取引形態
仲介 -
希望業種
各種倉庫(塗装業不可)
-
交通
とよたおいでんバス香九礼停歩3分 -
所在地
愛知県豊田市泉町山田
※用途地域により業種に制限があります。事前に確認が必要です。
- この物件情報をメールで送る
- この物件情報をLINEで送る
-
スマホで物件情報を見る
物件番号・取り扱い支店
- 物件番号
- 3703136-001













契約借家契約となります(契約期間は要相談)
一部の業種(塗装業)は契約不可となります。現状有姿での引渡しとなります。