貸事務所 愛知県春日井市高蔵寺町北4丁目の物件情報
お気に入り登録
0人がお気に入り登録
| 賃料 共益費等 |
保証金/償却 権利金 |
最寄り駅 | 所在地 | 種別 | 面積 (坪数) |
築年数 | 引渡日 |
|---|---|---|---|---|---|---|---|
| 89,001円 9,900円 |
35.6万円/195,800円 ----- |
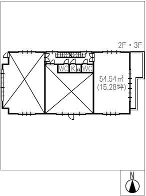
JR中央本線高蔵寺駅歩1分 | 愛知県春日井市高蔵寺町北4丁目 | 貸事務所 | 50.54㎡ (約15.28坪) |
築42年 | 即 可 |
賃料89,001円(共益費等 9,900円)
保証金35.6万円 償却195,800円 権利金----- 駐車場-----
愛知県春日井市高蔵寺町北4丁目
JR中央本線高蔵寺駅歩1分
物件情報
情報更新日 : 2025/11/27 ※次回更新は記載の「情報更新日」より8日以内に行います。
賃料等条件
-
賃料
89,001円 -
㎡・坪単価
約1761.0円/㎡ 約5824.6円/坪 -
共益費
9,900円 -
保証金/償却
35.6万円/195,800円 -
権利金
----- -
駐車場
----- -
その他条件
要お問い合わせ -
引渡日
即 可 -
備考
物件概要
-
種別
貸事務所 -
面積(坪数)
50.54㎡(約15.28坪) -
構造/階数
鉄筋造 4階建/3階 -
築年
1983年(昭和58年)2月 -
設備
要お問い合わせ -
ガス
都市ガスエリア -
用途地域
商業地域 -
取引形態
仲介 -
希望業種
各種事務所
-
交通
JR中央本線高蔵寺駅歩1分 -
所在地
愛知県春日井市高蔵寺町北4丁目
※用途地域により業種に制限があります。事前に確認が必要です。
- この物件情報をメールで送る
- この物件情報をLINEで送る
-
スマホで物件情報を見る
物件番号・取り扱い支店
- 物件番号
- 2802823-009



















