貸店舗事務所 愛知県安城市南町5丁目の物件情報
お気に入り登録
0人がお気に入り登録
| 賃料 共益費等 |
敷金/償却 権利金 |
最寄り駅 | 所在地 | 種別 | 面積 (坪数) |
築年数 | 引渡日 |
|---|---|---|---|---|---|---|---|
| 7.7万円 5,500円 |
15.4万円/----- ----- |
名鉄西尾線南安城駅歩8分 JR東海道本線安城駅歩17分 |
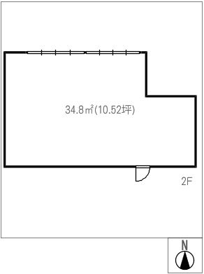
愛知県安城市南町5丁目 | 貸店舗事務所 | 34.80㎡ (約10.52坪) |
築38年 | 相 談 |
賃料7.7万円(共益費等 5,500円)
敷金15.4万円 償却----- 権利金----- 駐車場敷地内(5,500円)
愛知県安城市南町5丁目
名鉄西尾線南安城駅歩8分/JR東海道本線安城駅歩17分
この物件のおすすめポイント
- 駐車場あり
物件情報
情報更新日 : 2025/11/24 ※次回更新は記載の「情報更新日」より8日以内に行います。
賃料等条件
-
賃料
7.7万円 -
㎡・坪単価
約2212.6円/㎡ 約7319.3円/坪 -
共益費
5,500円 -
敷金/償却
15.4万円/----- -
権利金
----- -
駐車場
敷地内(5,500円) -
その他条件
月額保証料 9,020円/月
水道料暫定 2,200円/月 -
引渡日
相 談 -
備考
保証会社利用必須(初回保証料総賃料50%、年額保証料総賃料10%)
物件概要
-
種別
貸店舗事務所 -
面積(坪数)
34.80㎡(約10.52坪) -
構造/階数
鉄骨造 2階建/2階 -
築年
1986年(昭和61年)12月 -
設備
要お問い合わせ -
ガス
プロパンガスエリア -
用途地域
要お問い合わせ -
取引形態
仲介 -
希望業種
各種店舗・事務所
-
交通
名鉄西尾線南安城駅歩8分/JR東海道本線安城駅歩17分 -
所在地
愛知県安城市南町5丁目
※用途地域により業種に制限があります。事前に確認が必要です。
- この物件情報をメールで送る
- この物件情報をLINEで送る
-
スマホで物件情報を見る
物件番号・取り扱い支店
- 物件番号
- 2003888-002




