貸事務所 愛知県安城市三河安城南町1丁目の物件情報
お気に入り登録
0人がお気に入り登録
| 賃料 共益費等 |
保証金/償却 権利金 |
最寄り駅 | 所在地 | 種別 | 面積 (坪数) |
築年数 | 引渡日 |
|---|---|---|---|---|---|---|---|
| 607,860円 家賃込 |
3,647,160円/607,860円 ----- |
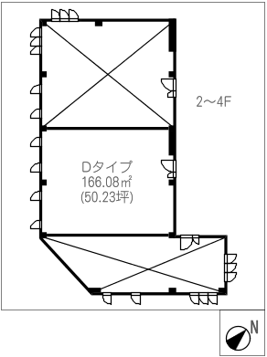
JR東海道本線三河安城駅歩8分 | 愛知県安城市三河安城南町1丁目 | 貸事務所 | 166.08㎡ (約50.23坪) |
築7年 | 即 可 |
賃料607,860円(共益費等 家賃込)
保証金3,647,160円 償却607,860円 権利金----- 駐車場敷地内(11,000円)
愛知県安城市三河安城南町1丁目
JR東海道本線三河安城駅歩8分
この物件のおすすめポイント
- 駐車場あり
物件情報
情報更新日 : 2026/02/02 ※次回更新は記載の「情報更新日」より8日以内に行います。
賃料等条件
-
賃料
607,860円 -
㎡・坪単価
約3660.0円/㎡ 約12101.5円/坪 -
共益費
家賃込 -
保証金/償却
3,647,160円/607,860円 -
権利金
----- -
駐車場
敷地内(11,000円) -
その他条件
要お問い合わせ -
引渡日
即 可 -
備考
定期建物賃貸借:2053年5月31日まで
2053年5月までの定期借家駐車場は場所により料金が変動します。
物件概要
-
種別
貸事務所 -
面積(坪数)
166.08㎡(約50.23坪) -
構造/階数
鉄骨造 8階建/3階 -
築年
2018年(平成30年)12月 -
設備
エアコン1基・防犯カメラ・オール電化・エレベーター・給湯 -
ガス
なし -
用途地域
商業地域 -
取引形態
仲介 -
希望業種
各種事務所
-
交通
JR東海道本線三河安城駅歩8分 -
所在地
愛知県安城市三河安城南町1丁目
※用途地域により業種に制限があります。事前に確認が必要です。
- この物件情報をメールで送る
- この物件情報をLINEで送る
-
スマホで物件情報を見る
物件番号・取り扱い支店
- 物件番号
- 2003754-013




