貸店舗事務所 FIVE STAR BILL ニッショー限定物件
お気に入り登録
0人がお気に入り登録
| 賃料 共益費等 |
保証金/償却 権利金 |
最寄り駅 | 所在地 | 種別 | 面積 (坪数) |
築年数 | 引渡日 |
|---|---|---|---|---|---|---|---|
| 28.5万円 8,800円 |
51.6万円/28.5万円 ----- |
地下鉄鶴舞線いりなか駅歩2分 地下鉄鶴舞線八事駅歩19分 地下鉄名城線八事日赤駅歩17分 |
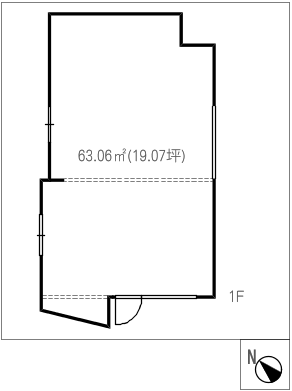
愛知県名古屋市昭和区隼人町 | 貸店舗事務所 | 63.06㎡ (約19.07坪) |
築1年未満 | 即 可 |
賃料28.5万円(共益費等 8,800円)
保証金51.6万円 償却28.5万円 権利金----- 駐車場-----
愛知県名古屋市昭和区隼人町
地下鉄鶴舞線いりなか駅歩2分/地下鉄鶴舞線八事駅歩19分/地下鉄名城線八事日赤駅歩17分
この物件のおすすめポイント
- 大通り沿い
- スケルトン ?
物件情報
情報更新日 : 2026/04/07 ※次回更新は記載の「情報更新日」より8日以内に行います。
賃料等条件
-
賃料
28.5万円 -
㎡・坪単価
約4519.5円/㎡ 約14944.9円/坪 -
共益費
8,800円 -
保証金/償却
51.6万円/28.5万円 -
権利金
----- -
駐車場
----- -
その他条件
振替手数料 550円/月 -
引渡日
即 可 -
備考
保証会社利用必須(初回保証料:総賃料の100%継続保証料:総賃料の10%決済手数料:550円/月)
物件概要
-
種別
貸店舗事務所 -
面積(坪数)
63.06㎡(約19.07坪) -
構造/階数
鉄筋造 3階建/1階 -
築年
2025年(令和7年)1月 -
設備
要お問い合わせ -
ガス
都市ガスエリア -
用途地域
近隣商業地域 -
取引形態
仲介 -
希望業種
各種店舗・事務所など飲食不可
- 物品販売
- 塾・教室関係
-
交通
地下鉄鶴舞線いりなか駅歩2分/地下鉄鶴舞線八事駅歩19分/地下鉄名城線八事日赤駅歩17分 -
所在地
愛知県名古屋市昭和区隼人町
※用途地域により業種に制限があります。事前に確認が必要です。
周辺環境
三洋堂書店350m / 聖霊病院260m / ローソン180m / スーパーバロー520m
- この物件情報をメールで送る
- この物件情報をLINEで送る
-
スマホで物件情報を見る
物件番号・取り扱い支店
- 物件番号
- 1902110-001














東海ビルド施工!一際目立つお洒落な外観♪
大通り沿いの築浅テナントビル!1フロア―1テナント仕様。事務所・物販等(飲食不可)お問い合わせお待ちしております。