貸店舗 グロウバルビル
お気に入り登録
0人がお気に入り登録
| 賃料 共益費等 |
保証金/償却 権利金 |
最寄り駅 | 所在地 | 種別 | 面積 (坪数) |
築年数 | 引渡日 |
|---|---|---|---|---|---|---|---|
| 163,680円 5,500円 |
446,400円/245,520円 ----- |
地下鉄東山線本郷駅歩6分 地下鉄東山線藤が丘駅歩10分 地下鉄東山線上社駅歩14分 |
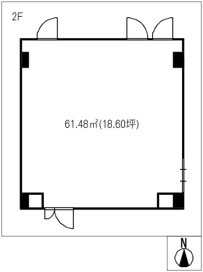
愛知県名古屋市名東区本郷3丁目 | 貸店舗 | 61.48㎡ (約18.60坪) |
築33年 | 即 可 |
賃料163,680円(共益費等 5,500円)
保証金446,400円 償却245,520円 権利金----- 駐車場-----
愛知県名古屋市名東区本郷3丁目
地下鉄東山線本郷駅歩6分/地下鉄東山線藤が丘駅歩10分/地下鉄東山線上社駅歩14分
この物件のおすすめポイント
- ビルイン店舗 ?
物件情報
情報更新日 : 2026/02/03 ※次回更新は記載の「情報更新日」より8日以内に行います。
賃料等条件
-
賃料
163,680円 -
㎡・坪単価
約2662.3円/㎡ 約8800.0円/坪 -
共益費
5,500円 -
保証金/償却
446,400円/245,520円 -
権利金
----- -
駐車場
----- -
その他条件
要お問い合わせ -
引渡日
即 可 -
備考
物件概要
-
種別
貸店舗 -
面積(坪数)
61.48㎡(約18.60坪) -
構造/階数
鉄筋造 5階建/2階 -
築年
1992年(平成4年)3月 -
設備
エアコン1基・電気コンロ -
ガス
都市ガスエリア -
用途地域
第二種中高層住居専用地域 -
取引形態
仲介 -
希望業種
各種店舗
-
交通
地下鉄東山線本郷駅歩6分/地下鉄東山線藤が丘駅歩10分/地下鉄東山線上社駅歩14分 -
所在地
愛知県名古屋市名東区本郷3丁目
※用途地域により業種に制限があります。事前に確認が必要です。
- この物件情報をメールで送る
- この物件情報をLINEで送る
-
スマホで物件情報を見る
物件番号・取り扱い支店
- 物件番号
- 1700736-034
















おしゃれな外観の事務所です。