2件該当
並び順
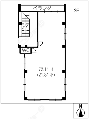
IZビル

愛知県愛西市東保町西河原
名鉄尾西線佐屋駅歩3分
- 大通り沿い
- 駐車場あり

貸店舗事務所
賃料
129,800円
(共益費等 家賃込)
敷金389,400円 償却----- 礼金129,800円 駐車場16,500円
階数3階建/2階 面積87.21㎡(約26.38坪) 築年数築4年
- 物品販売
- 美容・健康・介護関係
- 塾・教室関係
勝幡ビル

愛知県愛西市勝幡町流
名鉄津島線勝幡駅歩2分

貸事務所
賃料
5.5万円
(共益費等 3,300円)
保証金11万円 償却11万円 権利金----- 駐車場-----
階数4階建/4階 面積64.77㎡(約19.59坪) 築年数築43年
- 物品販売
- 美容・健康・介護関係
- 塾・教室関係